横浜の一戸建てや土地を探すなら【ホームタウンよこはま】 横浜市港南区 一戸建て 新築 建物完成しました! 今週末内覧会開催中!「上大岡」駅利用 新築一戸建て ロフト完備

新築一戸建

京浜急行本線 上大岡

建物完成しました! 今週末内覧会開催中!「上大岡」駅利用 新築一戸建て ロフト完備

価格
4,480万円
所在地
横浜市港南区 芹が谷4丁目 このエリアの物件一覧を見る
交通

京浜急行本線 上大岡駅 バス停「 せりぎんタウン」まで バス利用 16分 徒歩 4分 この駅が最寄り駅の物件一覧を見る

ブルーライン 上永谷駅 バス停「 澁谷台」まで バス利用 8分 徒歩 3分

土地面積
119.01m²
建物面積
94.39m²
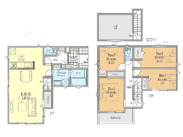
間取り
4LDK

2路線が乗り入れる「上大岡」駅利用。全室2面採光なので、明るく通風良好。LDKは、対面キッチン・リビングイン階段。季節物等の収納に便利な固定階段のロフト完備。

  • 間取り

    間取図
  •  

    準備中
  •  

    準備中
  •  

    準備中

物件周辺マップ

本物件最寄り駅から 通勤・通学で利用する駅からの所要時間

利用駅 駅まで

利用駅 駅まで

所要時間は 分です

会員登録し、利用駅情報を記入されますと、全ての物件で自動的に所要時間が表示され大変便利です。

会員登録はこちら

※既に会員の方で、利用駅情報が未記入の場合はマイページから情報をご記入ください。

※未だ会員登録をされていない方は、利用駅をご記入ください。

ローンシミュレーション

この物件の月々のお支払額

ボーナス時お支払額(×年2回)

年収に対する返済比率で安全性をチェック

※会員登録し、詳細情報を記入されますと、全ての物件で自動的に金額が表示され、大変便利です。

※未だ会員登録をされていない方は、下記チェック欄をご記入ください。

※上記計算は物件価格 4,480万円+諸経費 8%込みの金額による結果となります。

※返済金額はあくまでも目安です。

お客様の条件から シミュレーションするには

会員登録してローン情報を入力しておくと

全ての物件に対してローンシミュレーションを表示できます

会員情報にシミュレーション条件が未登録のお客様

マイページからシミュレーション条件を登録する

ゲストとしてシミュレーションするお客様

ローンシミュレーションを入力する↓
金利

変動金利と固定金利の比較

金利優遇について

ボーナス払い(年2回)
   

ボーナス払いを設定する人って、実際どのくらいいるの?

ボーナス払いの設定の目安は?

返済年数
       

返済年数の決めかたを教えてください。

頭金
   

頭金の目安は?

頭金は多い方がよいのですか?

頭金なしで購入するのと、頭金を貯金してからとではどちらが良いのですか?

年収
万円

返済比率の決めかたを教えてください。

詳細概要

学区

芹が谷南小学校 →この学区の物件一覧を見る

芹が谷中学校 →この学区の物件一覧を見る

用途地域 第一種低層住居専用地域
地目 宅地
建ぺい率 50%
容積率 80%
駐車場 有り カースペース
接道 東4m
権利 所有権
私道面積 有り 0.17m²  
セットバック 無し
建物構造 木造
建物階数 2階
築年月 2026/03
入居日 即時
建築確認番号
都市計画 市街化区域
取引態様 仲介
物件番号 48749
設備 都市ガス、公営水道、下水、駐車場2台以上、緑豊かな住宅地、閑静な住宅地、スーパーが近い(10分以内)、2沿線以上利用可、小学校徒歩10分以内、中学校徒歩10分以内、保育施設・幼稚園5分以内、コンビニ5分以内、シューズインクローク、対面キッチン、都市ガス、システムキッチン、ガス3口、対面キッチン、食器洗浄機、I型キッチン、ユニットバス、追い焚き、浴室乾燥機、ウォシュレット、トイレ2ヶ所、浴室に窓、暖房便座、浴室暖房、バルコニー、南面バルコニー、2階建、ロフト、LDK18畳以上、採光3面、全室2面採光、フローリング、リビング階段、クローゼット、収納、床下収納、下駄箱、屋根裏収納、全居室収納、シューズインクローク、シャンプドレッサー付き、フラット35Sに対応、モニタ付きインターフォン、ペアガラス、24時間換気システム、建物10年保証
特記事項 崖下につき建築制限 崖上につき建築制限 宅地造成工事規制区域 高度地区 日影制限 敷地面積最低限度 建物高さ10m以下 過小宅地 建築基準法第22条による区域 建物建築・再建築の際、深基礎、基礎杭、擁壁の補修・再構築、外壁後退等の対策が必要となる場合有。建物建築・再建築の際、防護壁の設置、高基礎、外壁後退等の対策が必要となる場合有。 崖下につき建築制限:有/崖上につき建築制限:有/宅地造成工事規制区域:有/高度地区:有/日影制限:有/敷地面積最低限度:有/高さ限度:有/過小宅地 建築基準法第22条による区域 建物建築・再建築の際、深基礎、基礎杭、擁壁の補修・再構築、外壁後退等の対策が必要となる場合有。建物建築・再建築の際、防護壁の設置、高基礎、外壁後退等の対策が必要となる場合有。 /
備考 2路線が乗り入れる「上大岡」駅利用。全室2面採光なので、明るく通風良好。LDKは、対面キッチン・リビングイン階段。季節物等の収納に便利な固定階段のロフト完備。