新築一戸建
京浜急行本線 上大岡
京浜急行本線 上大岡駅 徒歩 19分 この駅が最寄り駅の物件一覧を見る
ブルーライン 上大岡駅 徒歩 19分
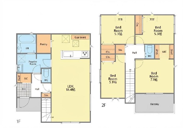
2路線が乗り入れる「上大岡」駅利用。全室2面採光なので、明るく通風良好なお住まいです。玄関隣接のSIC、大物の収納に便利なWIC完備。浴室乾燥機付。

| 学区 |
下永谷小学校 →この学区の物件一覧を見る 港南中学校 →この学区の物件一覧を見る |
|---|---|
| 用途地域 | 第一種中高層住居専用地域 |
| 地目 | 宅地 |
| 建ぺい率 | 60% |
| 容積率 | 150% |
| 駐車場 | 有り カースペース |
| 接道 | 南4m |
| 権利 | 所有権 |
| 私道面積 | 無し |
|---|---|
| セットバック | 無し |
| 建物構造 | 木造 |
| 建物階数 | 2階 |
| 築年月 | 2026/04 |
| 入居日 | 2026/05 |
| 建築確認番号 | 第25KAK建確02303号 |
| 都市計画 | 市街化区域 |
| 取引態様 | 仲介 |
| 物件番号 | 48533 |
|---|---|
| 設備 | 都市ガス、公営水道、下水、駐車場2台以上、緑豊かな住宅地、閑静な住宅地、南側道路面す、スーパーが近い(10分以内)、2沿線以上利用可、小学校徒歩10分以内、公園5分以内、シューズインクローク、ウォークインクローゼット、対面キッチン、パントリー、都市ガス、システムキッチン、ガス3口、カウンターキッチン、対面キッチン、I型キッチン、パントリー(食器・食品の収納庫)、ユニットバス、追い焚き、浴室乾燥機、ウォシュレット、トイレ2ヶ所、浴室に窓、暖房便座、浴室暖房、バルコニー、南面バルコニー、2階建、LDK18畳以上、全室2面採光、フローリング、全室フローリング、リビング階段、クローゼット、ウォークインクローゼット、収納、床下収納、全居室収納、シューズインクローク、シャンプドレッサー付き、モニタ付きインターフォン、24時間換気システム、建物10年保証 |
| 特記事項 | 宅地造成工事規制区域 高度地区 準防火地域 日影制限 建築基準法第22条による区域 宅地造成工事規制区域:有/高度地区:有/準防火地域:有/日影制限:有/建築基準法第22条による区域。 / |
| 備考 | 2路線が乗り入れる「上大岡」駅利用。全室2面採光なので、明るく通風良好なお住まいです。玄関隣接のSIC、大物の収納に便利なWIC完備。浴室乾燥機付。 |