新築一戸建
ブルーライン 上永谷
ブルーライン 上永谷駅 徒歩 9分 この駅が最寄り駅の物件一覧を見る
京浜急行本線 上大岡駅 バス停「 馬洗橋」まで バス利用 13分 徒歩 9分
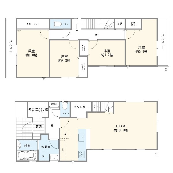
地下鉄BL「上永谷」駅から徒歩9分。カースペース2台駐車可能。SIC・パントリー完備。浴室乾燥機他、設備充実。LDKは対面キッチン・リビングイン階段。

| 学区 |
永野小学校 →この学区の物件一覧を見る 上永谷中学校 →この学区の物件一覧を見る |
|---|---|
| 用途地域 | 第一種低層住居専用地域 |
| 地目 | 宅地 |
| 建ぺい率 | 50% |
| 容積率 | 80% |
| 駐車場 | 有り カースペース |
| 接道 | 南西6.5m |
| 権利 | 所有権 |
| 私道面積 | 無し |
|---|---|
| セットバック | 無し |
| 建物構造 | 木造 |
| 建物階数 | 2階 |
| 築年月 | 2026/01 |
| 入居日 | 2026/01 |
| 建築確認番号 | 第25KAK建確01588号 |
| 都市計画 | 市街化区域 |
| 取引態様 | 仲介 |
| 物件番号 | 47828-2 |
|---|---|
| 設備 | 都市ガス、公営水道、下水、駐車場2台以上、緑豊かな住宅地、閑静な住宅地、南側道路面す、前道6m以上、スーパーが近い(10分以内)、2沿線以上利用可、小学校徒歩10分以内、保育施設・幼稚園5分以内、公園5分以内、シューズインクローク、対面キッチン、パントリー、都市ガス、システムキッチン、ガス3口、対面キッチン、食器洗浄機、浄水器、IHクッキングヒーター、I型キッチン、パントリー(食器・食品の収納庫)、ユニットバス、追い焚き、浴室乾燥機、ウォシュレット、トイレ2ヶ所、浴室に窓、暖房便座、浴室暖房、バルコニー2面、南面バルコニー、2階建、LDK18畳以上、採光2面、採光3面、全室南西向き、全室フローリング、リビング階段、クローゼット、収納、全居室収納、シューズインクローク、シャンプドレッサー付き、フラット35Sに対応、モニタ付きインターフォン、24時間換気システム、建物10年保証 |
| 特記事項 | 崖上にき建築制限 不整形地 宅地造成工事規制区域 高度地区 日影制限 敷地面積最低限度 建物高さ10m以下 建築基準法第22条区域 建物建築・再建築の際、深基礎、基礎杭、擁壁の補修・再構築、外壁後退等の対策が必要となる場合有。地形縦長 崖上につき建築制限:有/不整形地:有/宅地造成工事規制区域:有/高度地区:有/日影制限:有/敷地面積最低限度:有/高さ限度:有/建築基準法第22条区域 建物建築・再建築の際、深基礎、基礎杭、擁壁の補修・再構築、外壁後退等の対策が必要となる場合有。地形縦長 。 / |
| 備考 | 地下鉄BL「上永谷」駅から徒歩9分。カースペース2台駐車可能。SIC・パントリー完備。浴室乾燥機他、設備充実。LDKは対面キッチン・リビングイン階段。 |