新築一戸建
グリーンライン 高田
グリーンライン 高田駅 徒歩 12分 この駅が最寄り駅の物件一覧を見る
東急東横線 綱島駅 徒歩 26分
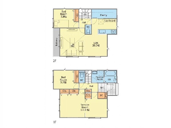
グリーンライン「高田」駅徒歩12分。閑静な住宅地。吹抜けで明るく開放感のある2階LDKは対面キッチンで、家族の会話が弾みます。納戸もお部屋としてご利用いただけます。

| 学区 |
新吉田小学校 →この学区の物件一覧を見る 新田中学校 →この学区の物件一覧を見る |
|---|---|
| 用途地域 | 第一種低層住居専用地域 |
| 地目 | 宅地 |
| 建ぺい率 | 60% |
| 容積率 | 100% |
| 駐車場 | 有り カースペース |
| 接道 | 東4.6m |
| 権利 | 所有権 |
| 私道面積 | 無し |
|---|---|
| セットバック | 無し |
| 建物構造 | 木造 |
| 建物階数 | 2階 |
| 築年月 | 2026/07 |
| 入居日 | 2026/08 |
| 建築確認番号 | 第25KAK建確02769号 |
| 都市計画 | 市街化区域 |
| 取引態様 | 仲介 |
| 物件番号 | 48663-3 |
|---|---|
| 設備 | 都市ガス、公営水道、下水、吹き抜け、駐車場2台以上、緑豊かな住宅地、閑静な住宅地、スーパーが近い(10分以内)、2沿線以上利用可、中学校徒歩10分以内、公園5分以内、システムキッチン、ガス3口、対面キッチン、I型キッチン、パントリー(食器・食品の収納庫)、ユニットバス、追い焚き、ウォシュレット、トイレ2ヶ所、浴室に窓、暖房便座、バルコニー、2階建、LDK20畳以上、採光2面、採光3面、全室2面採光、フローリング、クローゼット、収納、収納1間、床下収納、下駄箱、全居室収納、シューズインクローク、シャンプドレッサー付き、フラット35Sに対応、モニタ付きインターフォン、インターフォン、24時間換気システム、シューズインクローク、対面キッチン、パントリー、都市ガス、建物10年保証 |
| 特記事項 | 不整形地 宅地造成工事規制区域 高度地区 準防火地域 日影制限 敷地内段差 敷地面積最低限度 建物高さ10m以下 建築基準法第22条区域 横浜市建築基準条例第3条による制限有 建物建築・再建築の際、深基礎、基礎杭、擁壁の補修・再構築、外壁後退等の対策が必要となる場合があります 建物建築・再建築の際、防護壁の設置、高基礎、外壁後退等の対策が必要となる場合があります 傾斜地有 不整形地:有/宅地造成工事規制区域:有/高度地区:有/準防火地域:有/日影制限:有/敷地内段差:有/敷地面積最低限度:有/高さ限度:有/建築基準法第22条区域 横浜市建築基準条例第3条による制限有 建物建築・再建築の際、深基礎、基礎杭、擁壁の補修・再構築、外壁後退等の対策が必要となる場合があります 建物建築・再建築の際、防護壁の設置、高基礎、外壁後退等の対策が必要となる場合がありま |
| 備考 | グリーンライン「高田」駅徒歩12分。閑静な住宅地。吹抜けで明るく開放感のある2階LDKは対面キッチンで、家族の会話が弾みます。納戸もお部屋としてご利用いただけます。 |