新築一戸建
グリーンライン 高田
グリーンライン 高田駅 徒歩 12分 この駅が最寄り駅の物件一覧を見る
東急東横線 綱島駅 徒歩 22分
閑静な住宅地に佇む全5棟の分譲地 広々としたLDKと駐車2台可能なゆとり ミラブルzero搭載

| 学区 |
新吉田小学校 →この学区の物件一覧を見る 新田中学校 →この学区の物件一覧を見る |
|---|---|
| 用途地域 | 第一種低層住居専用地域 |
| 地目 | 宅地 |
| 建ぺい率 | 60% |
| 容積率 | 100% |
| 駐車場 | 有り カースペース |
| 接道 | 北東4.6m |
| 権利 | 所有権 |
| 私道面積 | 無し |
|---|---|
| セットバック | 無し |
| 建物構造 | 木造 |
| 建物階数 | 2階 |
| 築年月 | 2026/07 |
| 入居日 | 2026/08 |
| 建築確認番号 | 25KAK建確02769 |
| 都市計画 | 市街化区域 |
| 取引態様 | 仲介 |
| 物件番号 | A2388-3 |
|---|---|
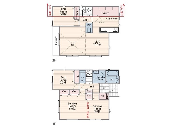
| 設備 | 都市ガス、公営水道、下水、吹き抜け、省エネルギー対策、BELS/省エネ基準適合認定書あり、駐車場2台以上、緑豊かな住宅地、閑静な住宅地、都市近郊、地盤調査済、市街地が近い、隣家との間隔が大きい、周辺交通量少なめ、スーパーが近い(10分以内)、2沿線以上利用可、中学校徒歩10分以内、公園5分以内、シューズインクローク、対面キッチン、パントリー、都市ガス、眺望良好、システムキッチン、ガスコンロ、ガス3口、カウンターキッチン、対面キッチン、食器洗浄機、浄水器、パントリー(食器・食品の収納庫)、ユニットバス、追い焚き、浴室乾燥機、ウォシュレット、オートバス付き、トイレ2ヶ所、浴室1坪以上、浴室に窓、高機能トイレ、暖房便座、浴室暖房、バルコニー、2階建、LDK20畳以上、省エネ給湯器、採光3面、全室2面採光、フローリング、全室フローリング、スマートキー、クローゼット、収納、床下収納、下駄箱、全居室収納、シューズインクローク、シャンプドレッサー付き、年内入居可、モニタ付きインターフォン、ペアガラス、火災警報器、全居室複層ガラスか複層サッシ、セキュリティ充実、通風良好、陽当り良好、眺望良好、24時間換気システム、建物10年保証 |
| 特記事項 | 不整形地:有/宅地造成工事規制区域:有/高度地区:有/準防火地域:有/日影制限:有/敷地内段差:有/敷地面積最低限度:有/高さ限度:有/緑化地域、土地面積に部分約48平米含む、駐車は車種により2台可、間取Sは納戸。 / |
| 備考 | 閑静な住宅地に佇む全5棟の分譲地 広々としたLDKと駐車2台可能なゆとり ミラブルzero搭載 |