横浜の一戸建てや土地を探すなら【ホームタウンよこはま】 横浜市磯子区 一戸建て 新築 今週末モデルハウス見学会開催中!「根岸」駅利用 新築一戸建て(2) 床暖房 エコジョーズ

新築一戸建

根岸線 根岸

今週末モデルハウス見学会開催中!「根岸」駅利用 新築一戸建て(2) 床暖房 エコジョーズ

価格
5,399万円
所在地
横浜市磯子区 岡村1丁目 このエリアの物件一覧を見る
交通

根岸線 根岸駅 徒歩 23分 この駅が最寄り駅の物件一覧を見る

京浜急行本線 上大岡駅 バス停「 古泉」まで バス利用 16分 徒歩 1分

土地面積
100.32m²
建物面積
99.58m²
間取り
1LDK+2S

JR根岸線「根岸」駅利用。陽の光を取り込みやすい2階リビング。会話が弾む対面キッチン。食洗機、エコジョーズ他、設備充実。納戸も居室としてご利用可能。

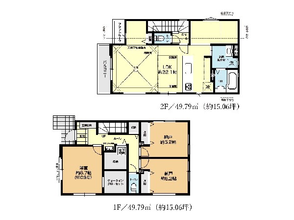
  • 間取り

    間取り:2号棟間取図
  • 区画図

    区画図
  •  

    準備中
  •  

    準備中

物件周辺マップ

本物件最寄り駅から 通勤・通学で利用する駅からの所要時間

利用駅 駅まで

利用駅 駅まで

所要時間は 分です

会員登録し、利用駅情報を記入されますと、全ての物件で自動的に所要時間が表示され大変便利です。

会員登録はこちら

※既に会員の方で、利用駅情報が未記入の場合はマイページから情報をご記入ください。

※未だ会員登録をされていない方は、利用駅をご記入ください。

ローンシミュレーション

この物件の月々のお支払額

ボーナス時お支払額(×年2回)

年収に対する返済比率で安全性をチェック

※会員登録し、詳細情報を記入されますと、全ての物件で自動的に金額が表示され、大変便利です。

※未だ会員登録をされていない方は、下記チェック欄をご記入ください。

※上記計算は物件価格 5,399万円+諸経費 8%込みの金額による結果となります。

※返済金額はあくまでも目安です。

お客様の条件から シミュレーションするには

会員登録してローン情報を入力しておくと

全ての物件に対してローンシミュレーションを表示できます

会員情報にシミュレーション条件が未登録のお客様

マイページからシミュレーション条件を登録する

ゲストとしてシミュレーションするお客様

ローンシミュレーションを入力する↓
金利

変動金利と固定金利の比較

金利優遇について

ボーナス払い(年2回)
   

ボーナス払いを設定する人って、実際どのくらいいるの?

ボーナス払いの設定の目安は?

返済年数
       

返済年数の決めかたを教えてください。

頭金
   

頭金の目安は?

頭金は多い方がよいのですか?

頭金なしで購入するのと、頭金を貯金してからとではどちらが良いのですか?

年収
万円

返済比率の決めかたを教えてください。

詳細概要

学区

磯子小学校 →この学区の物件一覧を見る

岡村中学校 →この学区の物件一覧を見る

用途地域 第一種低層住居専用地域
地目 宅地
建ぺい率 50%
容積率 100%
駐車場 有り カースペース
接道 南西4.4m
権利 所有権
私道面積 無し
セットバック 無し
建物構造 木造
建物階数 2階
築年月 2025/12
入居日 2026/01
建築確認番号 第25UDI1W建05641号
都市計画 市街化区域
取引態様 仲介
物件番号 47768-2
設備 都市ガス、公営水道、下水、防犯シャッター、吹き抜け、駐車場2台以上、緑豊かな住宅地、閑静な住宅地、南側道路面す、小学校徒歩10分以内、中学校徒歩10分以内、コンビニ5分以内、ウォークインクローゼット、対面キッチン、都市ガス、システムキッチン、ガスキッチン、ガス3口、対面キッチン、食器洗浄機、浄水器、I型キッチン、ユニットバス、追い焚き、浴室乾燥機、ウォシュレット、トイレ2ヶ所、浴室に窓、暖房便座、バルコニー、南面バルコニー、2階建、LDK20畳以上、省エネ給湯器、採光2面、採光3面、全室2面採光、フローリング、クローゼット、ウォークインクローゼット、収納、床下収納、下駄箱、全居室収納、シャンプドレッサー付き、フラット35Sに対応、モニタ付きインターフォン、インターフォン、ペアガラス、24時間換気システム、建物10年保証
特記事項 宅地造成工事規制区域 高度地区 準防火地域 日影制限 敷地面積最低限度 建物高さ10m以下 不燃化推進地域 建築基準法第22条区域 宅地造成工事規制区域:有/高度地区:有/準防火地域:有/日影制限:有/敷地面積最低限度:有/高さ限度:有/不燃化推進地域 建築基準法第22条区域。 /
備考 JR根岸線「根岸」駅利用。陽の光を取り込みやすい2階リビング。会話が弾む対面キッチン。食洗機、エコジョーズ他、設備充実。納戸も居室としてご利用可能。