新築一戸建
東急東横線 菊名
東急東横線 菊名駅 徒歩 19分 この駅が最寄り駅の物件一覧を見る
横浜線 菊名駅 徒歩 19分
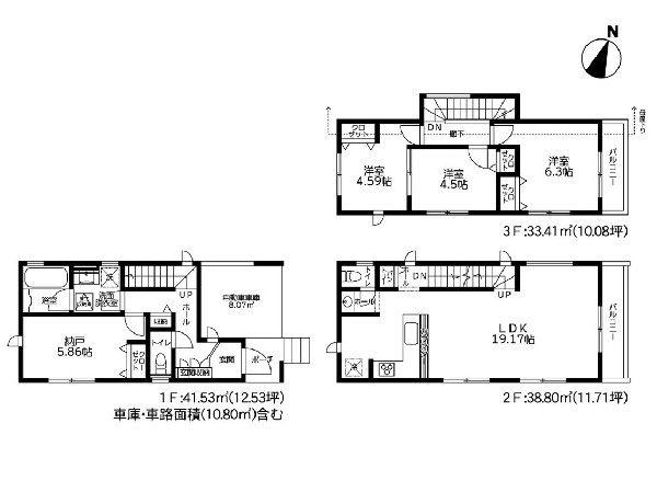
JR横浜線/東急東横線「菊名」駅徒歩19分 一次エネルギー等級6取得のエコ住宅 19.1帖のゆとりあるLDK セカンド洗面台 パントリー・廊下収納など収納豊富でスッキリ片付く住まい

| 学区 |
馬場小学校 500m →この学区の物件一覧を見る 上の宮中学校 800m →この学区の物件一覧を見る |
|---|---|
| 用途地域 | 第一種住居地域 |
| 地目 | 宅地 |
| 建ぺい率 | 60% |
| 容積率 | 160% |
| 駐車場 | 有り ビルトイン車庫 |
| 接道 | 東4m |
| 権利 | 所有権 |
| 私道面積 | 有り 1.68m² |
|---|---|
| セットバック | 無し |
| 建物構造 | 木造 |
| 建物階数 | 3階 |
| 築年月 | 2026/08 |
| 入居日 | 2026/09 |
| 建築確認番号 | 第KBI-SGM25-10-5463号 |
| 都市計画 | 市街化区域 |
| 取引態様 | 仲介 |
| 物件番号 | P1134-1 |
|---|---|
| 設備 | 都市ガス、公営水道、下水、防犯シャッター、省エネルギー対策、外壁サイディング、ビルトインガレージ、閑静な住宅地、都市近郊、地盤調査済、市街地が近い、周辺交通量少なめ、2沿線以上利用可、小学校徒歩10分以内、中学校徒歩10分以内、保育施設・幼稚園5分以内、公園5分以内、コンビニ5分以内、対面キッチン、パントリー、都市ガス、システムキッチン、カウンターキッチン、対面キッチン、L型キッチン、食器洗浄機、浄水器、パントリー(食器・食品の収納庫)、ユニットバス、追い焚き、浴室乾燥機、ウォシュレット、オートバス付き、トイレ2ヶ所、TV付浴室、浴室1坪以上、浴室に窓、暖房便座、セカンド洗面台、浴室暖房、バルコニー、3階建以上、LDK18畳以上、採光3面、フローリング、リビング階段、クローゼット、収納、床下収納、下駄箱、全居室収納、洗面室収納、シャンプドレッサー付き、モニタ付きインターフォン、カードキー、ペアガラス、火災警報器、通風良好、陽当り良好、24時間換気システム、建物10年保証 |
| 特記事項 | 建物面積にビルトイン車庫面積10.80平米含む 宅地造成工事規制区域:有/高度地区:有/準防火地域:有/日影制限:有/敷地内段差:有/緑化地域、間取りSは納戸、他に私道持分19.50m2の1/2あり、南側隣地所有のCB一部が本地へ越境(覚書有)。 / |
| 備考 | JR横浜線/東急東横線「菊名」駅徒歩19分 一次エネルギー等級6取得のエコ住宅 19.1帖のゆとりあるLDK セカンド洗面台 パントリー・廊下収納など収納豊富でスッキリ片付く住まい |