新築一戸建
東急東横線 妙蓮寺
東急東横線 妙蓮寺駅 徒歩 23分 この駅が最寄り駅の物件一覧を見る
横浜線 菊名駅 バス停「 西寺尾建功寺前」まで バス利用 10分 徒歩 3分
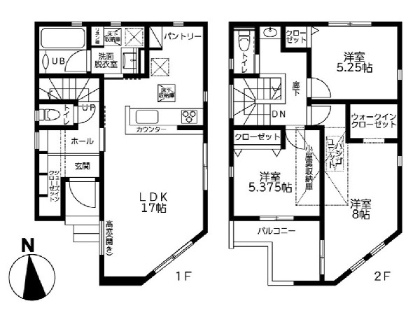
「妙蓮寺」駅徒歩圏 菊名/鶴見駅もらくらくバス便利用可! SIC・WIC・パントリー・小屋裏収納庫付き 収納スペース豊富でスッキリ片付く住まい スーパー・コンビニ・保育園が近く利便性良好!

| 学区 |
馬場小学校 800m →この学区の物件一覧を見る 上の宮中学校 1700m →この学区の物件一覧を見る |
|---|---|
| 用途地域 | 近隣商業地域 |
| 地目 | 宅地 |
| 建ぺい率 | 80% |
| 容積率 | 200% |
| 駐車場 | 有り カースペース |
| 接道 | 北東9.1m |
| 権利 | 所有権 |
| 私道面積 | 無し |
|---|---|
| セットバック | 無し |
| 建物構造 | 木造 |
| 建物階数 | 2階 |
| 築年月 | 2026/05 |
| 入居日 | 2026/06 |
| 建築確認番号 | 第25UDI1K建01475号 |
| 都市計画 | 市街化区域 |
| 取引態様 | 仲介 |
| 物件番号 | P1113-1 |
|---|---|
| 設備 | 都市ガス、公営水道、下水、省エネルギー対策、駐車場1台、都市近郊、地盤調査済、前道6m以上、市街地が近い、整備された歩道、スーパーが近い(10分以内)、2沿線以上利用可、小学校徒歩10分以内、保育施設・幼稚園5分以内、公園5分以内、コンビニ5分以内、シューズインクローク、ウォークインクローゼット、対面キッチン、パントリー、都市ガス、システムキッチン、カウンターキッチン、対面キッチン、食器洗浄機、浄水器、パントリー(食器・食品の収納庫)、ユニットバス、追い焚き、浴室乾燥機、ウォシュレット、オートバス付き、トイレ2ヶ所、TV付浴室、浴室1坪以上、浴室に窓、暖房便座、セカンド洗面台、浴室暖房、バルコニー、ワイドバルコニー、南面バルコニー、2階建、LDK15畳以上、屋根裏収納、採光3面、南向き、全室2面採光、フローリング、クローゼット、ウォークインクローゼット、収納、床下収納、下駄箱、屋根裏収納、全居室収納、洗面室収納、シューズインクローク、シャンプドレッサー付き、モニタ付きインターフォン、ペアガラス、火災警報器、通風良好、陽当り良好、24時間換気システム、建物10年保証 |
| 特記事項 | 不整形地:有/航空法:有/宅地造成工事規制区域:有/高度地区:有/準防火地域:有/日影制限:有/敷地内段差:有/緑化地域、都市計画道路あり。 / |
| 備考 | 「妙蓮寺」駅徒歩圏 菊名/鶴見駅もらくらくバス便利用可! SIC・WIC・パントリー・小屋裏収納庫付き 収納スペース豊富でスッキリ片付く住まい スーパー・コンビニ・保育園が近く利便性良好! |