新築一戸建
京浜東北線 鶴見
京浜東北線 鶴見駅 徒歩 20分 この駅が最寄り駅の物件一覧を見る
京浜急行本線 京急鶴見駅 バス停「 宮の下」まで バス利用 7分 徒歩 3分
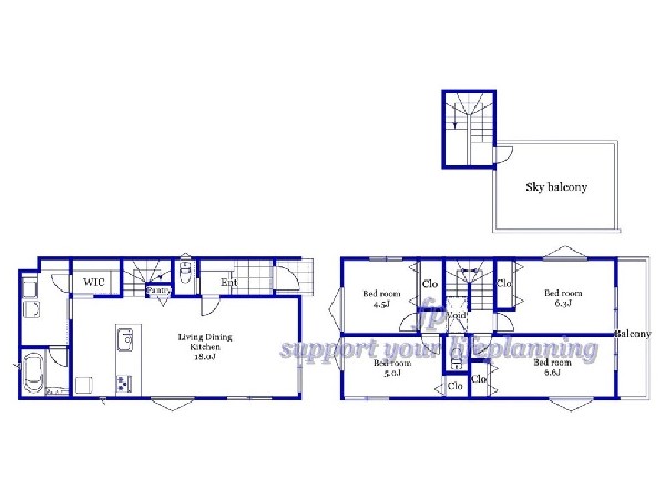
<20号棟>ルーフバルコニー ウォークスルー型パントリー 水回り集中し家事動線良好 リビング収納

| 学区 |
末吉小学校 →この学区の物件一覧を見る 末吉中学校 →この学区の物件一覧を見る |
|---|---|
| 用途地域 | 第二種中高層住居専用地域 |
| 地目 | 宅地 |
| 建ぺい率 | 60% |
| 容積率 | 150% |
| 駐車場 | 有り カースペース |
| 接道 | 東5.5m |
| 権利 | 所有権 |
| 私道面積 | 無し |
|---|---|
| セットバック | 無し |
| 建物構造 | 木造 |
| 建物階数 | 2階 |
| 築年月 | 2026/03 |
| 入居日 | 2026/05 |
| 建築確認番号 | 第2025SBC-確00612M号 |
| 都市計画 | 市街化区域 |
| 取引態様 | 仲介 |
| 物件番号 | P0725-20 |
|---|---|
| 設備 | 都市ガス、公営水道、下水、省エネルギー対策、シックハウス対策、駐車場2台以上、高台に立地、閑静な住宅地、都市近郊、開発分譲地内、地盤調査済、市街地が近い、周辺交通量少なめ、ゴルフ場が近い、テニスコートが近い、スーパーが近い(10分以内)、始発駅、2沿線以上利用可、総合病院徒歩10分以内、小学校徒歩10分以内、保育施設・幼稚園5分以内、公園5分以内、コンビニ5分以内、対面キッチン、パントリー、都市ガス、眺望良好、システムキッチン、対面キッチン、食器洗浄機、浄水器、パントリー(食器・食品の収納庫)、追い焚き、浴室乾燥機、ウォシュレット、オートバス付き、トイレ2ヶ所、シャワー、浴室1坪以上、浴室に窓、暖房便座、浴室暖房、バルコニー、バルコニー2面、ルーフバルコニー、ワイドバルコニー、南面バルコニー、2階建、LDK18畳以上、省エネ給湯器、採光2面、南向き、全室2面採光、フローリング、リビング階段、クローゼット、収納、下駄箱、全居室収納、シャンプドレッサー付き、フラット35Sに対応、モニタ付きインターフォン、ペアガラス、火災警報器、通風良好、陽当り良好、眺望良好、24時間換気システム、建物10年保証 |
| 特記事項 | 不整形地:有/航空法:有/宅地造成工事規制区域:有/高度地区:有/準防火地域:有/日影制限:有/敷地内段差:有/緑化地域 横浜市建築基準条例第3条による制限有 私道持分別途あり 土地面積に路地状部分24.8平米含む 駐車は車種により2台可。 / |
| 備考 | <20号棟>ルーフバルコニー ウォークスルー型パントリー 水回り集中し家事動線良好 リビング収納 |