新築一戸建
グリーンライン 北山田
グリーンライン 北山田駅 徒歩 12分 この駅が最寄り駅の物件一覧を見る
ブルーライン センター北駅 バス停「 東山田二丁目」まで バス利用 15分 徒歩 4分
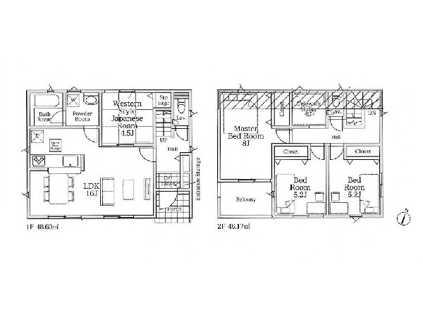
北山田駅徒歩12分 広々約49坪の敷地にゆとりの4LDK リビングに隣接の和室有 全居室収納付き

| 学区 |
東山田小学校 →この学区の物件一覧を見る 東山田中学校 →この学区の物件一覧を見る |
|---|---|
| 用途地域 | 第一種低層住居専用地域 |
| 地目 | 宅地 |
| 建ぺい率 | 40% |
| 容積率 | 80% |
| 駐車場 | 有り カースペース |
| 接道 | 南6m |
| 権利 | 所有権 |
| 私道面積 | 無し |
|---|---|
| セットバック | 無し |
| 建物構造 | 木造 |
| 建物階数 | 2階 |
| 築年月 | 2026/05 |
| 入居日 | 2026/06 |
| 建築確認番号 | 第R07SHC125889号 |
| 都市計画 | 市街化区域 |
| 取引態様 | 仲介 |
| 物件番号 | A2415 |
|---|---|
| 設備 | 都市ガス、公営水道、下水、設計住宅性能評価付、建設住宅性能評価書(新築時)、駐車場2台以上、区画整理地内、閑静な住宅地、都市近郊、地盤調査済、南側道路面す、前道6m以上、市街地が近い、2沿線以上利用可、小学校徒歩10分以内、中学校徒歩10分以内、保育施設・幼稚園5分以内、公園5分以内、対面キッチン、都市ガス、システムキッチン、ガス3口、対面キッチン、食器洗浄機、浄水器、ユニットバス、追い焚き、浴室乾燥機、ウォシュレット、オートバス付き、トイレ2ヶ所、浴室1坪以上、浴室に窓、暖房便座、バルコニー、南面バルコニー、2階建、LDK15畳以上、採光2面、南向き、クローゼット、収納、床下収納、下駄箱、全居室収納、シャンプドレッサー付き、モニタ付きインターフォン、ペアガラス、火災警報器、全居室複層ガラスか複層サッシ、陽当り良好、24時間換気システム、建物10年保証 |
| 特記事項 | 不整形地:有/壁面後退:有/宅地造成工事規制区域:有/高度地区:有/日影制限:有/敷地面積最低限度:有/高さ限度:有/建築基準法第22条区域、土地面積165.02m2のうち路地状敷地面積約32.2m2含む、駐車は車種により2台可。 / |
| 備考 | 北山田駅徒歩12分 広々約49坪の敷地にゆとりの4LDK リビングに隣接の和室有 全居室収納付き |