新築一戸建
グリーンライン 川和町
グリーンライン 川和町駅 徒歩 20分 この駅が最寄り駅の物件一覧を見る
横浜線 鴨居駅 徒歩 21分
収納豊富なデザイナーズ住宅 グリーンライン「川和町」駅 徒歩20分 吹抜けを採用した解放感のある新築一戸建

| 学区 |
都田西小学校 →この学区の物件一覧を見る 都田中学校 →この学区の物件一覧を見る |
|---|---|
| 用途地域 | 工業地域 |
| 地目 | 宅地 |
| 建ぺい率 | 60% |
| 容積率 | 200% |
| 駐車場 | 有り カースペース |
| 接道 | 東4.1m |
| 権利 | 所有権 |
| 私道面積 | 無し |
|---|---|
| セットバック | 無し |
| 建物構造 | 木造 |
| 建物階数 | 2階 |
| 築年月 | 2026/03 |
| 入居日 | 即時 |
| 建築確認番号 | 第23KAK建確04105号 |
| 都市計画 | 市街化区域 |
| 取引態様 | 仲介 |
| 物件番号 | A2401-2 |
|---|---|
| 設備 | 都市ガス、公営水道、下水、吹き抜け、駐車場2台以上、緑豊かな住宅地、都市近郊、地盤調査済、市街地が近い、田園風景、周辺交通量少なめ、スーパーが近い(10分以内)、2沿線以上利用可、対面キッチン、パントリー、都市ガス、眺望良好、システムキッチン、ガス3口、対面キッチン、食器洗浄機、浄水器、I型キッチン、パントリー(食器・食品の収納庫)、ユニットバス、追い焚き、浴室乾燥機、ウォシュレット、オートバス付き、トイレ2ヶ所、浴室1坪以上、浴室に窓、暖房便座、浴室暖房、バルコニー、南面バルコニー、2階建、ロフト、LDK15畳以上、屋根裏収納、採光2面、南向き、リビング階段、クローゼット、収納、下駄箱、全居室収納、シャンプドレッサー付き、年内入居可、モニタ付きインターフォン、ペアガラス、火災警報器、眺望良好、24時間換気システム、建物10年保証 |
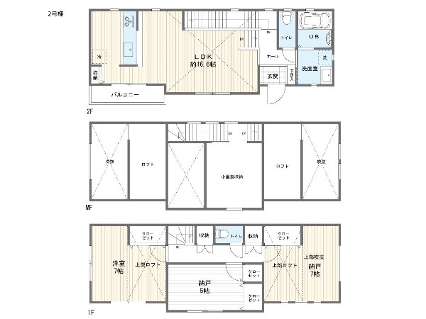
| 特記事項 | 崖下につき建築制限:有/宅地造成工事規制区域:有/高度地区:有/日影制限:有/一部都市計画道路:有/敷地内段差:有/接道と段差:有/高さ限度:有/再建築の際は、擁壁側にRC造りの防護壁を設ける必要があります 緑化地域 建築基準法第22条による区域 間取りSは納戸 駐車は車種により2台可。 / |
| 備考 | 収納豊富なデザイナーズ住宅 グリーンライン「川和町」駅 徒歩20分 吹抜けを採用した解放感のある新築一戸建 |