新築一戸建
グリーンライン 東山田
グリーンライン 東山田駅 徒歩 19分 この駅が最寄り駅の物件一覧を見る
グリーンライン 北山田駅 徒歩 20分
港北ニュータウンの綺麗な街並 全11棟の統一感のある美しい邸宅 駐車並列2〜3台可能 敷地面積約50坪

| 学区 |
山田小学校 →この学区の物件一覧を見る 東山田中学校 →この学区の物件一覧を見る |
|---|---|
| 用途地域 | 第一種低層住居専用地域 |
| 地目 | 宅地 |
| 建ぺい率 | 50% |
| 容積率 | 80% |
| 駐車場 | 有り カースペース |
| 接道 | 北西6m |
| 権利 | 所有権 |
| 私道面積 | 無し |
|---|---|
| セットバック | 無し |
| 建物構造 | 木造 |
| 建物階数 | 2階 |
| 築年月 | 2026/05 |
| 入居日 | 2026/07 |
| 建築確認番号 | 第25KAK建確01938号 |
| 都市計画 | 市街化区域 |
| 取引態様 | 仲介 |
| 物件番号 | A2354-10 |
|---|---|
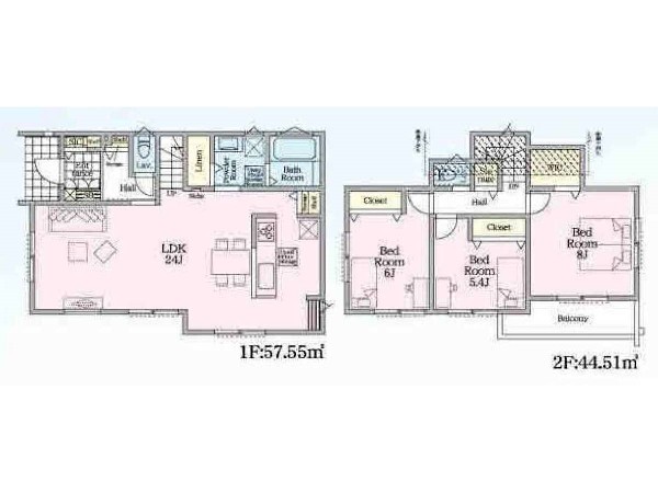
| 設備 | 都市ガス、公営水道、下水、省エネルギー対策、駐車場2台以上、区画整理地内、整形地、緑豊かな住宅地、閑静な住宅地、平坦地、都市近郊、開発分譲地内、地盤調査済、前道6m以上、市街地が近い、隣家との間隔が大きい、周辺交通量少なめ、2沿線以上利用可、小学校徒歩10分以内、公園5分以内、システムキッチン、ガス3口、対面キッチン、食器洗浄機、浄水器、アイランドキッチン、パントリー(食器・食品の収納庫)、ユニットバス、追い焚き、浴室乾燥機、ウォシュレット、オートバス付き、トイレ2ヶ所、浴室1坪以上、浴室に窓、暖房便座、浴室暖房、バルコニー、南面バルコニー、2階建、LDK20畳以上、省エネ給湯器、採光2面、全室2面採光、南西向き、全室南西向き、フローリング、全室フローリング、リビング階段、クローゼット、ウォークインクローゼット、収納、床下収納、下駄箱、全居室収納、洗面室収納、シューズインクローク、シャンプドレッサー付き、庭、フラット35Sに対応、年内入居可、モニタ付きインターフォン、ペアガラス、火災警報器、通風良好、陽当り良好、24時間換気システム、シューズインクローク、ウォークインクローゼット、対面キッチン、パントリー、都市ガス、整形地、建物10年保証 |
| 特記事項 | 壁面後退:有/宅地造成工事規制区域:有/高度地区:有/日影制限:有/敷地面積最低限度:有/高さ限度:有/緑化地域/建築基準法22条による区域/港北ニュータウン街づくり協議地区/駐車は車種により3台可/ゴミ置き場2.00平米の持ち分1/11有。 / |
| 備考 | 港北ニュータウンの綺麗な街並 全11棟の統一感のある美しい邸宅 駐車並列2〜3台可能 敷地面積約50坪 |