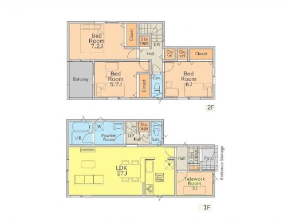
新築一戸建
東海道本線 戸塚
東海道本線 戸塚駅 バス停「 三叉路」まで バス利用 14分 徒歩 5分 この駅が最寄り駅の物件一覧を見る
根岸線 大船駅 バス停「 三叉路」まで バス利用 17分 徒歩 4分
JR東海道線「戸塚」駅利用。緑豊かで閑静な住宅地。全居室収納付き。浴室暖房乾燥機、床下収納、人感センサー、ペアガラス等設備充実。カースペース2台。

| 学区 |
大正小学校 →この学区の物件一覧を見る 大正中学校 →この学区の物件一覧を見る |
|---|---|
| 用途地域 | 第一種低層住居専用地域 |
| 地目 | 宅地 |
| 建ぺい率 | 50% |
| 容積率 | 80% |
| 駐車場 | 有り カースペース |
| 接道 | 東3.1m |
| 権利 | 所有権 |
| 私道面積 | 有り 10.68m² 1/2 |
|---|---|
| セットバック | 無し |
| 建物構造 | 木造 |
| 建物階数 | 2階 |
| 築年月 | 2026/01 |
| 入居日 | 即時 |
| 建築確認番号 | |
| 都市計画 | 市街化区域 |
| 取引態様 | 仲介 |
| 物件番号 | 48521-1 |
|---|---|
| 設備 | 都市ガス、公営水道、下水、駐車場2台以上、緑豊かな住宅地、閑静な住宅地、スーパーが近い(10分以内)、2沿線以上利用可、小学校徒歩10分以内、中学校徒歩10分以内、保育施設・幼稚園5分以内、対面キッチン、都市ガス、システムキッチン、ガス3口、対面キッチン、I型キッチン、ユニットバス、追い焚き、浴室乾燥機、ウォシュレット、トイレ2ヶ所、浴室に窓、暖房便座、浴室暖房、バルコニー、2階建、LDK15畳以上、人感照明センサー、採光2面、全室2面採光、フローリング、クローゼット、収納、床下収納、下駄箱、全居室収納、シャンプドレッサー付き、フラット35Sに対応、モニタ付きインターフォン、インターフォン、ペアガラス、全居室複層ガラスか複層サッシ、24時間換気システム、建物10年保証 |
| 特記事項 | 不整形地 宅地造成工事規制区域 高度地区 日影制限 一部協定通路 敷地面積最低限度 建物高さ10m以下 建築基準法第22条区域 横浜市建築基準条例第3条による制限有 建物建築・再建築の際、深基礎、基礎杭、擁壁の補修・再構築、外壁後退等の対策が必要となる場合があります 建物建築・再建築の際、防護壁の設置、高基礎、外壁後退等の対策が必要となる場合があります 協定地建築敷地面積の内2.05平米 建物面積にルーフバルコニー4.86平米含 不整形地:有/宅地造成工事規制区域:有/高度地区:有/日影制限:有/一部協定通路:有/敷地面積最低限度:有/高さ限度:有/建築基準法第22条区域 横浜市建築基準条例第3条による制限有 建物建築・再建築の際、深基礎、基礎杭、擁壁の補修・再構築、外壁後退等の対策が必要となる場合があります 建物建築・再建築の際、防護壁の設置、高基 |
| 備考 | JR東海道線「戸塚」駅利用。緑豊かで閑静な住宅地。全居室収納付き。浴室暖房乾燥機、床下収納、人感センサー、ペアガラス等設備充実。カースペース2台。 |