新築一戸建
東海道本線 戸塚
東海道本線 戸塚駅 徒歩 18分 この駅が最寄り駅の物件一覧を見る
ブルーライン 戸塚駅 徒歩 18分
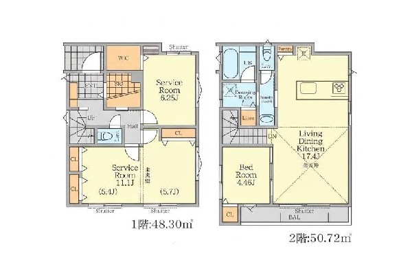
JR東海道線「戸塚」駅利用。プライバシーに配慮した2階リビング。LDKは対面キッチン・リビングイン階段。パントリー完備。食洗機他、設備充実。

| 学区 |
戸塚小学校 →この学区の物件一覧を見る 戸塚中学校 →この学区の物件一覧を見る |
|---|---|
| 用途地域 | 第一種住居地域 |
| 地目 | 宅地 |
| 建ぺい率 | 60% |
| 容積率 | 180% |
| 駐車場 | 有り カースペース |
| 接道 | 南西4.5m |
| 権利 | 所有権 |
| 私道面積 | 無し |
|---|---|
| セットバック | 無し |
| 建物構造 | 木造 |
| 建物階数 | 2階 |
| 築年月 | 2026/03 |
| 入居日 | 2026/04 |
| 建築確認番号 | 第25KAK建確01606号 |
| 都市計画 | 市街化区域 |
| 取引態様 | 仲介 |
| 物件番号 | 48461-1 |
|---|---|
| 設備 | 都市ガス、公営水道、下水、高気密高断熱住宅、駐車場1台、緑豊かな住宅地、閑静な住宅地、スーパーが近い(10分以内)、2沿線以上利用可、保育施設・幼稚園5分以内、公園5分以内、シューズインクローク、ウォークインクローゼット、対面キッチン、パントリー、都市ガス、システムキッチン、ガス3口、対面キッチン、食器洗浄機、浄水器、I型キッチン、パントリー(食器・食品の収納庫)、ユニットバス、追い焚き、浴室乾燥機、ウォシュレット、トイレ2ヶ所、浴室1坪以上、浴室に窓、暖房便座、浴室暖房、バルコニー、南面バルコニー、2階建、LDK15畳以上、間取り変更可能、省エネ給湯器、全室2面採光、全室フローリング、リビング階段、クローゼット、ウォークインクローゼット、収納、下駄箱、全居室収納、シューズインクローク、シャンプドレッサー付き、モニタ付きインターフォン、ペアガラス、全居室複層ガラスか複層サッシ、通風良好、陽当り良好、24時間換気システム、建物10年保証 |
| 特記事項 | 崖下につき建築制限 崖上につき建築制限 宅地造成工事規制区域 高度地区 準防火地域 日影制限 一部都市計画道路 敷地内段差 建築基準法第22条区域 建物建築・再建築の際、深基礎、基礎杭、擁壁の補修・再構築、外壁後退等の対策が必要となる場合有。建物建築・再建築の際、防護壁の設置、高基礎、外壁後退等の対策が必要となる場合有。傾斜地含 崖下につき建築制限:有/崖上につき建築制限:有/宅地造成工事規制区域:有/高度地区:有/準防火地域:有/日影制限:有/一部都市計画道路:有/敷地内段差:有/建築基準法第22条区域 建築基準法第22条区域 建物建築・再建築の際、深基礎、基礎杭、擁壁の補修・再構築、外壁後退等の対策が必要となる場合有。建物建築・再建築の際、防護壁の設置、高基礎、外壁後退等の対策が必要となる場合有。傾斜地含。 / |
| 備考 | JR東海道線「戸塚」駅利用。プライバシーに配慮した2階リビング。LDKは対面キッチン・リビングイン階段。パントリー完備。食洗機他、設備充実。 |