横浜の一戸建てや土地を探すなら【ホームタウンよこはま】 横浜市戸塚区 マンション 中古 値下げしました! サンリヤン東戸塚 中古マンション 

マンション

横須賀線 東戸塚

値下げしました! サンリヤン東戸塚 中古マンション 

価格
6,980万円
所在地
横浜市戸塚区 前田町 このエリアの物件一覧を見る
交通

横須賀線 東戸塚駅 徒歩 10分 この駅が最寄り駅の物件一覧を見る

東海道本線 横浜駅 バス停「 品濃口」まで バス利用 45分 徒歩 6分

専有
68.92m²
間取り
2SLDK

JR横須賀線「東戸塚」駅徒歩10分。南向きのバルコニーは日当たり良好。LDKは対面式カウンターキッチンでご家族との会話が弾みます。納戸も居室としてご利用可能。

  • 外観

    外観:JR東戸塚駅徒歩10分。通勤・通学も快適な住環境です。
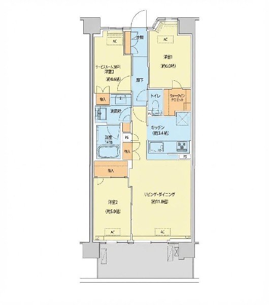
  • 間取り

    間取図
  • 内観

    大容量のシューズクローク付きで玄関まわりもすっきり。いつでも綺麗を保てる収納力が魅力です。
  • 内観

    南向きの明るいLDK。ワイドスパンで開放感があり、家族団らんをゆったり楽しめる空間です。 ※写真内の家具・家電・小物は売買対象外となります。
  • 内観

    明るい陽光が差し込む開放的なLDK。ゆとりある空間設計で、家族が自然と集う心地よいリビングです。 ※写真内の家具・家電・小物は売買対象外となります。
  • 外観

    外観:重厚感あるエントランスアプローチ。ゆとりある動線と整った植栽が、住まう方を静かに迎え入れます。
  • 外観

    外観:南側バルコニーから広がる開放的な眺望。遮るものの少ない抜け感と、たっぷりの陽光が心地よい明るい住空間を実現します。
  • 内観

    端正な広さを確保したLDK。整形で美しい空間設計が、上質で落ち着きある住まいを演出します。 ※写真内の家具・家電・小物は売買対象外となります。
  • 内観

    大きな窓から光がたっぷり入る、抜け感のあるLDK。バルコニーとつながる開放的な空間で、ふたりの時間をもっと心地よく。 ※写真内の家具・家電・小物は売買対象外となります。
  • 内観

    動線良好な対面キッチン。リビングを見渡せる安心設計です。 ※写真内の家具・家電・小物は売買対象外となります。
  • 内観

    三面鏡付き洗面化粧台と充実の収納。ゆとりある洗面室で、毎日の身支度も快適にこなせます。 ※写真内の家具・家電・小物は売買対象外となります。
  • 内観

    木目調パネルが上質さを演出するバスルーム。ゆったりとした浴槽で、一日の疲れを癒す寛ぎの空間です。 ※写真内の家具・家電・小物は売買対象外となります。
  • 内観

    落ち着いた雰囲気の洋室。主寝室やワークスペースとしても活用できる、使い勝手の良い一室です。 ※写真内の家具・家電・小物は売買対象外となります。
  • 内観

    間接照明が美しく映えるエントランス。昼夜で表情を変える、上質な迎賓空間を演出します。
  • 内観

    洗練されたラウンジスペースを備えた共用設計。ホテルライクな空間が、住まいの格を一段引き上げます。

物件周辺マップ

本物件最寄り駅から 通勤・通学で利用する駅からの所要時間

利用駅 駅まで

利用駅 駅まで

所要時間は 分です

会員登録し、利用駅情報を記入されますと、全ての物件で自動的に所要時間が表示され大変便利です。

会員登録はこちら

※既に会員の方で、利用駅情報が未記入の場合はマイページから情報をご記入ください。

※未だ会員登録をされていない方は、利用駅をご記入ください。

ローンシミュレーション

この物件の月々のお支払額

ボーナス時お支払額(×年2回)

年収に対する返済比率で安全性をチェック

※会員登録し、詳細情報を記入されますと、全ての物件で自動的に金額が表示され、大変便利です。

※未だ会員登録をされていない方は、下記チェック欄をご記入ください。

※上記計算は物件価格 6,980万円+諸経費 8%込みの金額による結果となります。

※返済金額はあくまでも目安です。

お客様の条件から シミュレーションするには

会員登録してローン情報を入力しておくと

全ての物件に対してローンシミュレーションを表示できます

会員情報にシミュレーション条件が未登録のお客様

マイページからシミュレーション条件を登録する

ゲストとしてシミュレーションするお客様

ローンシミュレーションを入力する↓
金利

変動金利と固定金利の比較

金利優遇について

ボーナス払い(年2回)
   

ボーナス払いを設定する人って、実際どのくらいいるの?

ボーナス払いの設定の目安は?

返済年数
       

返済年数の決めかたを教えてください。

頭金
   

頭金の目安は?

頭金は多い方がよいのですか?

頭金なしで購入するのと、頭金を貯金してからとではどちらが良いのですか?

年収
万円

返済比率の決めかたを教えてください。

詳細概要

学区

品濃小学校 →この学区の物件一覧を見る

秋葉中学校 →この学区の物件一覧を見る

総戸数 147戸
販売戸数
管理形態 全部委託
管理費 12000円
修繕積立金 6900円
用途地域 準工業地域
階建て/階 7階建て/ 5階
築年月 2021/11
向き
都市計画
権利 所有権
取引態様 仲介
物件番号 48374
設備 都市ガス、公営水道、下水、エレベータ、緑豊かな住宅地、閑静な住宅地、スーパーが近い(10分以内)、2沿線以上利用可、小学校徒歩10分以内、保育施設・幼稚園5分以内、公園5分以内、コンビニ5分以内、ウォークインクローゼット、対面キッチン、都市ガス、ガス3口、カウンターキッチン、対面キッチン、I型キッチン、バルコニー、南面バルコニー、LDK15畳以上、フローリング、クローゼット、ウォークインクローゼット、収納、下駄箱
特記事項 宅地造成工事規制区域 高度地区 準防火地域 日影制限 建築基準法第22条区域 宅地造成工事規制区域:有/高度地区:有/準防火地域:有/日影制限:有/建築基準法第22条区域。 /
備考 JR横須賀線「東戸塚」駅徒歩10分。南向きのバルコニーは日当たり良好。LDKは対面式カウンターキッチンでご家族との会話が弾みます。納戸も居室としてご利用可能。