新築一戸建
横須賀線 東戸塚
横須賀線 東戸塚駅 徒歩 17分 この駅が最寄り駅の物件一覧を見る
東海道本線 戸塚駅 バス停「 秋葉三叉路」まで バス利用 14分 徒歩 6分
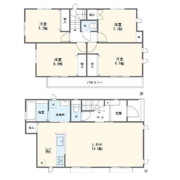
JR横須賀線「東戸塚」駅利用。緑豊かで閑静な住宅地。4LDKのゆとりの間取り、全居室収納。会話が弾む対面キッチン。浴室暖房乾燥機、床下収納付。カースペース並行2台。

| 学区 |
川上小学校 →この学区の物件一覧を見る 秋葉中学校 →この学区の物件一覧を見る |
|---|---|
| 用途地域 | 第一種低層住居専用地域 |
| 地目 | 宅地 |
| 建ぺい率 | 50% |
| 容積率 | 80% |
| 駐車場 | 有り カースペース |
| 接道 | 北東4.1m |
| 権利 | 所有権 |
| 私道面積 | 無し |
|---|---|
| セットバック | 無し |
| 建物構造 | 木造 |
| 建物階数 | 2階 |
| 築年月 | 2026/02 |
| 入居日 | 2026/03 |
| 建築確認番号 | 第HPA-25-10304-1号 |
| 都市計画 | 市街化区域 |
| 取引態様 | 仲介 |
| 物件番号 | 48210 |
|---|---|
| 設備 | 都市ガス、公営水道、下水、外壁サイディング、駐車場2台以上、緑豊かな住宅地、閑静な住宅地、スーパーが近い(10分以内)、2沿線以上利用可、小学校徒歩10分以内、中学校徒歩10分以内、公園5分以内、対面キッチン、都市ガス、システムキッチン、ガス3口、対面キッチン、I型キッチン、ユニットバス、追い焚き、浴室乾燥機、ウォシュレット、トイレ2ヶ所、浴室に窓、暖房便座、浴室暖房、バルコニー、ワイドバルコニー、2階建、LDK18畳以上、採光2面、全室2面採光、フローリング、クローゼット、収納、床下収納、下駄箱、全居室収納、シャンプドレッサー付き、フラット35Sに対応、モニタ付きインターフォン、インターフォン、24時間換気システム、建物10年保証 |
| 特記事項 | 不整形地 宅地造成工事規制区域 高度地区 日影制限 敷地面積最低限度 建物高さ10m以下 建築基準法第22条区域 不整形地:有/宅地造成工事規制区域:有/高度地区:有/日影制限:有/敷地面積最低限度:有/高さ限度:有/建築基準法第22条区域。 / |
| 備考 | JR横須賀線「東戸塚」駅利用。緑豊かで閑静な住宅地。4LDKのゆとりの間取り、全居室収納。会話が弾む対面キッチン。浴室暖房乾燥機、床下収納付。カースペース並行2台。 |