新築一戸建
小田急線 読売ランド前
小田急線 読売ランド前駅 徒歩 13分 この駅が最寄り駅の物件一覧を見る
小田急線 百合ヶ丘駅 徒歩 14分
開放感が魅力の邸宅 家族とのコミュニケーションの取りやすいペニンシュラキッチン 収納豊富なロフト付

| 学区 |
南生田小学校 →この学区の物件一覧を見る 南生田中学校 →この学区の物件一覧を見る |
|---|---|
| 用途地域 | 第一種低層住居専用地域 |
| 地目 | 宅地 |
| 建ぺい率 | 50% |
| 容積率 | 100% |
| 駐車場 | 有り カースペース |
| 接道 | 北西3.7m |
| 権利 | 所有権 |
| 私道面積 | 有り 5.65m² |
|---|---|
| セットバック | 無し |
| 建物構造 | 木造 |
| 建物階数 | 2階 |
| 築年月 | 2026/06 |
| 入居日 | 2026/06 |
| 建築確認番号 | 25UDI1K建01980 |
| 都市計画 | 市街化区域 |
| 取引態様 | 仲介 |
| 物件番号 | A1978 |
|---|---|
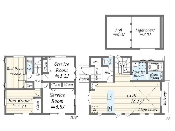
| 設備 | 都市ガス、公営水道、下水、吹き抜け、省エネルギー対策、駐車場1台、高台に立地、緑豊かな住宅地、閑静な住宅地、都市近郊、地盤調査済、市街地が近い、周辺交通量少なめ、公園5分以内、シューズインクローク、対面キッチン、パントリー、都市ガス、眺望良好、システムキッチン、ガスコンロ、ガス3口、カウンターキッチン、対面キッチン、食器洗浄機、浄水器、パントリー(食器・食品の収納庫)、ユニットバス、追い焚き、浴室乾燥機、ウォシュレット、オートバス付き、トイレ2ヶ所、浴室1坪以上、浴室に窓、高機能トイレ、暖房便座、浴室暖房、バルコニー、2階建、ロフト、LDK18畳以上、省エネ給湯器、採光3面、全室2面採光、フローリング、全室フローリング、天井高2.5m以上、リビング階段、スマートキー、クローゼット、収納、下駄箱、全居室収納、シューズインクローク、シャンプドレッサー付き、モニタ付きインターフォン、ペアガラス、火災警報器、全居室複層ガラスか複層サッシ、セキュリティ充実、通風良好、陽当り良好、24時間換気システム、建物10年保証 |
| 特記事項 | 崖下につき建築制限:有/崖上につき建築制限:有/壁面後退:有/景観法:有/宅地造成工事規制区域:有/高度地区:有/日影制限:有/一部都市計画道路:有/敷地内段差:有/敷地面積最低限度:有/高さ限度:有/建築基準法22条区域、間取Sは納戸。 / |
| 備考 | 開放感が魅力の邸宅 家族とのコミュニケーションの取りやすいペニンシュラキッチン 収納豊富なロフト付 |