新築一戸建
南武線 中野島
南武線 中野島駅 徒歩 10分 この駅が最寄り駅の物件一覧を見る
小田急線 向ヶ丘遊園駅 バス停「 土渕」まで バス利用 8分 徒歩 6分
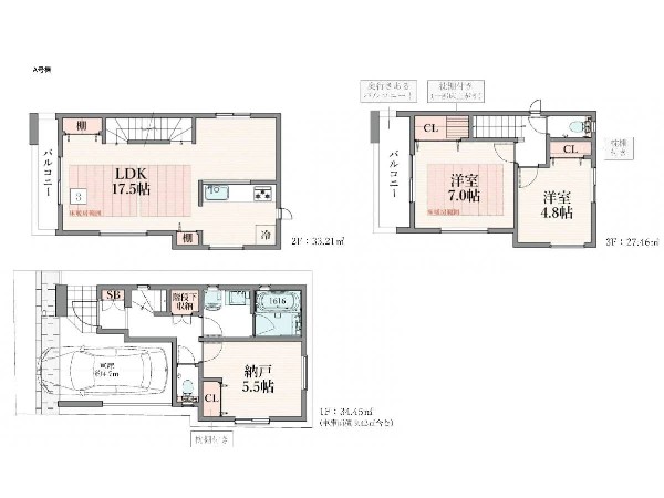
新築デザイナーズ住宅 中野島駅徒歩10分 LDK17帖 省エネ性能 LDKと3階7帖洋室に床暖房設置

| 学区 |
生田小学校 →この学区の物件一覧を見る 生田中学校 →この学区の物件一覧を見る |
|---|---|
| 用途地域 | 第一種中高層住居専用地域 |
| 地目 | 宅地 |
| 建ぺい率 | 60% |
| 容積率 | 160% |
| 駐車場 | 有り ビルトイン車庫 |
| 接道 | 南4m |
| 権利 | 所有権 |
| 私道面積 | 有り 32m² 1/10 |
|---|---|
| セットバック | 無し |
| 建物構造 | 木造 |
| 建物階数 | 3階 |
| 築年月 | 2026/03 |
| 入居日 | 2026/04 |
| 建築確認番号 | 第R07SHC116858号 |
| 都市計画 | 市街化区域 |
| 取引態様 | 仲介 |
| 物件番号 | A1816-A |
|---|---|
| 設備 | 都市ガス、公営水道、下水、省エネルギー対策、耐震構造、ビルトインガレージ、駐車場1台、整形地、緑豊かな住宅地、閑静な住宅地、平坦地、都市近郊、地盤調査済、南側道路面す、市街地が近い、周辺交通量少なめ、2沿線以上利用可、公園5分以内、コンビニ5分以内、対面キッチン、パントリー、都市ガス、整形地、システムキッチン、ガス3口、対面キッチン、食器洗浄機、浄水器、I型キッチン、ユニットバス、追い焚き、浴室乾燥機、ウォシュレット、トイレ2ヶ所、浴室1坪以上、浴室に窓、暖房便座、浴室暖房、バルコニー、南面バルコニー、3階建以上、LDK15畳以上、省エネ給湯器、採光3面、南向き、全室2面採光、リビング階段、クローゼット、収納、下駄箱、全居室収納、シャンプドレッサー付き、フラット35Sに対応、モニタ付きインターフォン、ペアガラス、火災警報器、陽当り良好、24時間換気システム、建物10年保証 |
| 特記事項 | 景観法:有/宅地造成工事規制区域:有/高度地区:有/準防火地域:有/日影制限:有/高さ限度:有/間取りSは納戸 建物面積に車庫面積約9.42m2含む。 / |
| 備考 | 新築デザイナーズ住宅 中野島駅徒歩10分 LDK17帖 省エネ性能 LDKと3階7帖洋室に床暖房設置 |