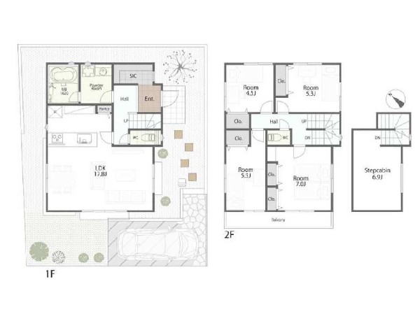
条件付土地
小田急線 向ヶ丘遊園
小田急線 向ヶ丘遊園駅 徒歩 23分 この駅が最寄り駅の物件一覧を見る
南武線 登戸駅 徒歩 30分
「向ヶ丘遊園」駅 緑豊かな閑静な住宅地 前面道路幅6m 緑の潤いを感じながらホッと生活できそう

| 学区 |
向丘小学校 →この学区の物件一覧を見る 平中学校 →この学区の物件一覧を見る |
|---|---|
| 現況 | 更地 |
| 引渡し日 | 相談 |
| 区画数 | 6 |
| 都市計画 | 市街化区域 |
| 権利 | 所有権 |
| 取引態様 | 仲介 |
| 用途地域 | 第一種低層住居専用地域 |
|---|---|
| 地目 | 宅地 |
| 建ぺい率 | 50% |
| 容積率 | 80% |
| 建築可能面積 | 100m² |
| 接道 | 南東6m |
| 私道面積 | 無し |
| セットバック | 無し |
| 物件番号 | A1776-1 |
|---|---|
| 特記事項 | 建築基準法第22条区域/崖下につき建築制限:有/崖上につき建築制限:有/壁面後退:有/景観法:有/宅地造成工事規制区域:有/高度地区:有/日影制限:有/敷地面積最低限度:有/高さ限度:有。 建築条件:付き/ |
| 備考 | 「向ヶ丘遊園」駅 緑豊かな閑静な住宅地 前面道路幅6m 緑の潤いを感じながらホッと生活できそう |