新築一戸建
田園都市線 溝の口
田園都市線 溝の口駅 徒歩 20分 この駅が最寄り駅の物件一覧を見る
南武線 武蔵新城駅 徒歩 15分
「溝の口」「武蔵溝ノ口」「武蔵新城」駅まで平坦徒歩利用可 全室2面採光の風通りの良いお住まいです。

| 学区 |
坂戸小学校 →この学区の物件一覧を見る 東高津中学校 →この学区の物件一覧を見る |
|---|---|
| 用途地域 | 第一種住居地域 |
| 地目 | 宅地 |
| 建ぺい率 | 60% |
| 容積率 | 200% |
| 駐車場 | 有り ビルトイン車庫 |
| 接道 | 北8m |
| 権利 | 所有権 |
| 私道面積 | 無し |
|---|---|
| セットバック | 無し |
| 建物構造 | 木造 |
| 建物階数 | 3階 |
| 築年月 | 2026/07 |
| 入居日 | 2026/08 |
| 建築確認番号 | 第25KAK建確02386号 |
| 都市計画 | 市街化区域 |
| 取引態様 | 仲介 |
| 物件番号 | A2405-B |
|---|---|
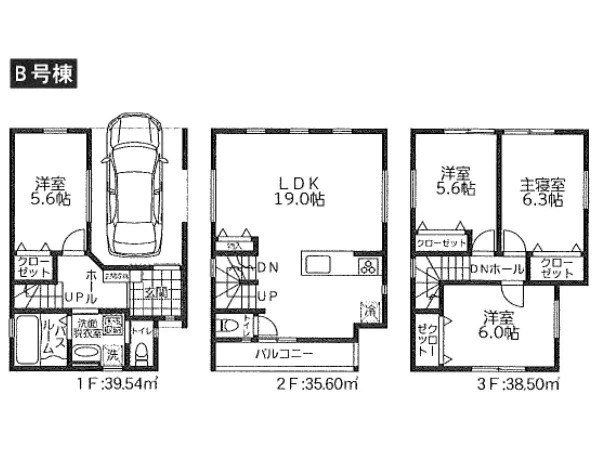
| 設備 | 都市ガス、公営水道、下水、ビルトインガレージ、駐車場1台、整形地、平坦地、都市近郊、地盤調査済、市街地が近い、整備された歩道、スーパーが近い(10分以内)、駅まで平坦、2沿線以上利用可、小学校徒歩10分以内、中学校徒歩10分以内、保育施設・幼稚園5分以内、公園5分以内、コンビニ5分以内、対面キッチン、都市ガス、整形地、システムキッチン、ガス3口、対面キッチン、浄水器、I型キッチン、ユニットバス、追い焚き、浴室乾燥機、ウォシュレット、トイレ2ヶ所、浴室に窓、暖房便座、バルコニー、南面バルコニー、3階建以上、LDK18畳以上、採光3面、全室2面採光、リビング階段、クローゼット、床下収納、下駄箱、全居室収納、シャンプドレッサー付き、年内入居可、モニタ付きインターフォン、ペアガラス、火災警報器、陽当り良好、24時間換気システム、建物10年保証 |
| 特記事項 | 景観法:有/宅地造成工事規制区域:有/高度地区:有/準防火地域:有/日影制限:有/高さ限度:有/建物面積に車庫面積約13.00m2含む。 / |
| 備考 | 「溝の口」「武蔵溝ノ口」「武蔵新城」駅まで平坦徒歩利用可 全室2面採光の風通りの良いお住まいです。 |