新築一戸建
田園都市線 高津
田園都市線 高津駅 徒歩 14分 この駅が最寄り駅の物件一覧を見る
南武線 武蔵溝ノ口駅 徒歩 17分
商業施設が整う人気の「溝の口」駅まで徒歩圏内 豊かな自然と利便性を兼ね備えた住環境 充実の標準設備

| 学区 |
高津小学校 →この学区の物件一覧を見る 西高津中学校 →この学区の物件一覧を見る |
|---|---|
| 用途地域 | 第一種住居地域 |
| 地目 | 宅地 |
| 建ぺい率 | 60% |
| 容積率 | 160% |
| 駐車場 | 有り ビルトイン車庫 |
| 接道 | 東4m、北2.6m |
| 権利 | 所有権 |
| 私道面積 | 無し |
|---|---|
| セットバック | 無し |
| 建物構造 | 木造 |
| 建物階数 | 3階 |
| 築年月 | 2026/08 |
| 入居日 | 2026/09 |
| 建築確認番号 | 第HPA-26-00699-1 |
| 都市計画 | 市街化区域 |
| 取引態様 | 仲介 |
| 物件番号 | A2334-B |
|---|---|
| 設備 | 都市ガス、公営水道、下水、設計住宅性能評価付、建設住宅性能評価書(新築時)、ビルトインガレージ、駐車場1台、緑豊かな住宅地、閑静な住宅地、平坦地、角地、都市近郊、地盤調査済、市街地が近い、周辺交通量少なめ、スーパーが近い(10分以内)、駅まで平坦、始発駅、2沿線以上利用可、小学校徒歩10分以内、中学校徒歩10分以内、保育施設・幼稚園5分以内、公園5分以内、コンビニ5分以内、システムキッチン、ガスコンロ、ガス3口、カウンターキッチン、対面キッチン、食器洗浄機、浄水器、ユニットバス、追い焚き、浴室乾燥機、ウォシュレット、オートバス付き、トイレ2ヶ所、浴室1坪以上、浴室に窓、暖房便座、セカンド洗面台、浴室暖房、バルコニー、3階建以上、LDK15畳以上、採光3面、全室2面採光、東南向き、フローリング、全室フローリング、リビング階段、クローゼット、収納、床下収納、下駄箱、全居室収納、シャンプドレッサー付き、年内入居可、モニタ付きインターフォン、ペアガラス、火災警報器、セキュリティ充実、通風良好、陽当り良好、24時間換気システム、対面キッチン、都市ガス、建物10年保証 |
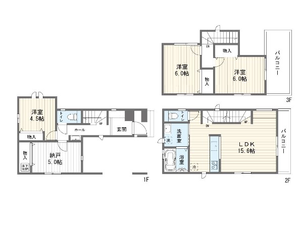
| 特記事項 | 景観法:有/宅地造成工事規制区域:有/高度地区:有/準防火地域:有/日影制限:有/高さ限度:有/B号棟:建物面積のうち車庫部分面積9.93m2含む、間取Sは納戸。 / |
| 備考 | 商業施設が整う人気の「溝の口」駅まで徒歩圏内 豊かな自然と利便性を兼ね備えた住環境 充実の標準設備 |