新築一戸建
南武線 武蔵中原
南武線 武蔵中原駅 バス停「 蓮花寺前」まで バス利用 14分 徒歩 2分 この駅が最寄り駅の物件一覧を見る
田園都市線 溝の口駅 バス停「 蓮花寺前」まで バス利用 23分 徒歩 2分
「武蔵中原」駅利用 高津図書館橘分室が目の前 コンビニやスーパーも近く日常のお買い物に便利な立地です

| 学区 |
久末小学校 →この学区の物件一覧を見る 東橘中学校 →この学区の物件一覧を見る |
|---|---|
| 用途地域 | 第二種中高層住居専用地域 |
| 地目 | 宅地 |
| 建ぺい率 | 60% |
| 容積率 | 160% |
| 駐車場 | 有り カースペース |
| 接道 | 南西4m |
| 権利 | 所有権 |
| 私道面積 | 有り 60m² |
|---|---|
| セットバック | 無し |
| 建物構造 | 木造 |
| 建物階数 | 2階 |
| 築年月 | 2026/04 |
| 入居日 | 2026/05 |
| 建築確認番号 | 第25UDI1W建09075号 |
| 都市計画 | 市街化区域 |
| 取引態様 | 仲介 |
| 物件番号 | A2318 |
|---|---|
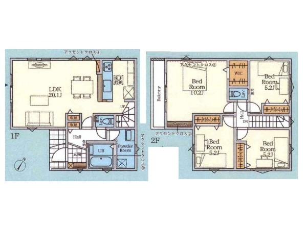
| 設備 | 公営水道、下水、防犯シャッター、省エネルギー対策、駐車場2台以上、整形地、閑静な住宅地、平坦地、都市近郊、地盤調査済、南側道路面す、市街地が近い、周辺交通量少なめ、スーパーが近い(10分以内)、始発駅、2沿線以上利用可、小学校徒歩10分以内、公園5分以内、コンビニ5分以内、ウォークインクローゼット、対面キッチン、パントリー、都市ガス、整形地、システムキッチン、ガス3口、対面キッチン、食器洗浄機、浄水器、パントリー(食器・食品の収納庫)、ユニットバス、追い焚き、浴室乾燥機、ウォシュレット、トイレ2ヶ所、浴室に窓、暖房便座、バルコニー、南面バルコニー、2階建、LDK20畳以上、採光3面、全室2面採光、南西向き、リビング階段、クローゼット、ウォークインクローゼット、収納、床下収納、下駄箱、全居室収納、シャンプドレッサー付き、フラット35Sに対応、年内入居可、モニタ付きインターフォン、ペアガラス、火災警報器、通風良好、陽当り良好、24時間換気システム、建物10年保証 |
| 特記事項 | 駐車は車種により2台可/景観法:有/宅地造成工事規制区域:有/高度地区:有/準防火地域:有/日影制限:有/高さ限度:有。 / |
| 備考 | 「武蔵中原」駅利用 高津図書館橘分室が目の前 コンビニやスーパーも近く日常のお買い物に便利な立地です |