新築一戸建
南武線 武蔵中原
南武線 武蔵中原駅 バス停「 野川くぬぎ坂」まで バス利用 14分 徒歩 4分 この駅が最寄り駅の物件一覧を見る
田園都市線 宮前平駅 バス停「 野川」まで バス利用 15分 徒歩 6分
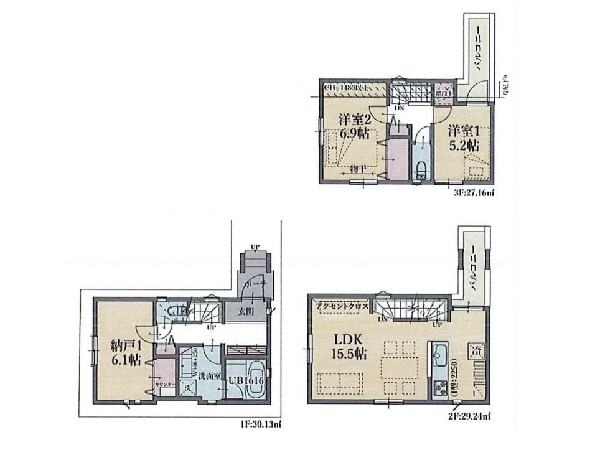
武蔵中原駅 家族の行き来を見守れるリビング階段と対面キッチン EV電源や宅配BOXなど充実の設備・仕様

| 学区 |
野川小学校 →この学区の物件一覧を見る 野川中学校 →この学区の物件一覧を見る |
|---|---|
| 用途地域 | 第一種中高層住居専用地域 |
| 地目 | 宅地 |
| 建ぺい率 | 60% |
| 容積率 | 200% |
| 駐車場 | 有り カースペース |
| 接道 | 北6m |
| 権利 | 所有権 |
| 私道面積 | 無し |
|---|---|
| セットバック | 無し |
| 建物構造 | 木造 |
| 建物階数 | 3階 |
| 築年月 | 2026/04 |
| 入居日 | 2026/05 |
| 建築確認番号 | 第KBI-YKH25-11-1077号 |
| 都市計画 | 市街化区域 |
| 取引態様 | 仲介 |
| 物件番号 | A2224-F |
|---|---|
| 設備 | 公営水道、下水、宅配ロッカー、省エネルギー対策、二重床構造、耐震構造、駐車場1台、緑豊かな住宅地、都市近郊、地盤調査済、前道6m以上、市街地が近い、周辺交通量少なめ、スーパーが近い(10分以内)、2沿線以上利用可、公園5分以内、コンビニ5分以内、対面キッチン、システムキッチン、ガス3口、対面キッチン、食器洗浄機、浄水器、ユニットバス、追い焚き、浴室乾燥機、ウォシュレット、オートバス付き、トイレ2ヶ所、浴室1坪以上、浴室に窓、暖房便座、浴室暖房、バルコニー、3階建以上、LDK15畳以上、採光3面、全室2面採光、フローリング、全室フローリング、リビング階段、クローゼット、収納、下駄箱、全居室収納、シャンプドレッサー付き、フラット35Sに対応、年内入居可、モニタ付きインターフォン、ペアガラス、火災警報器、通風良好、陽当り良好、24時間換気システム、建物10年保証 |
| 特記事項 | 不整形地:有/景観法:有/宅地造成工事規制区域:有/高度地区:有/準防火地域:有/日影制限:有/高さ限度:有/間取りSは納戸/土地面積:路地状部分約17.77平米含/建物面積:ポーチ面積1.86平米含。 / |
| 備考 | 武蔵中原駅 家族の行き来を見守れるリビング階段と対面キッチン EV電源や宅配BOXなど充実の設備・仕様 |