新築一戸建
田園都市線 宮崎台
田園都市線 宮崎台駅 徒歩 18分 この駅が最寄り駅の物件一覧を見る
南武線 武蔵溝ノ口駅 バス停「 上作団地前」まで バス利用 9分 徒歩 5分
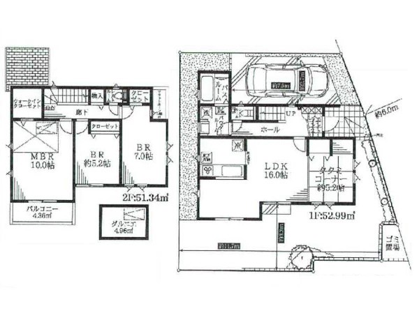
「宮崎台」駅徒歩18分 溝の口駅へもバス便多数 タタミコーナーつき 全室お庭に面し陽当たり良好です

| 学区 |
南原小学校 →この学区の物件一覧を見る 向丘中学校 →この学区の物件一覧を見る |
|---|---|
| 用途地域 | 第一種低層住居専用地域 |
| 地目 | 宅地 |
| 建ぺい率 | 50% |
| 容積率 | 80% |
| 駐車場 | 有り カースペース |
| 接道 | 北東6m |
| 権利 | 所有権 |
| 私道面積 | 無し |
|---|---|
| セットバック | 無し |
| 建物構造 | 木造 |
| 建物階数 | 2階 |
| 築年月 | 2026/03 |
| 入居日 | 2027/04 |
| 建築確認番号 | 建確サービス第KSI25-3820-50354号 |
| 都市計画 | 市街化区域 |
| 取引態様 | 仲介 |
| 物件番号 | A1916-10 |
|---|---|
| 設備 | 都市ガス、公営水道、下水、駐車場1台、閑静な住宅地、都市近郊、開発分譲地内、地盤調査済、市街地が近い、周辺交通量少なめ、スーパーが近い(10分以内)、2沿線以上利用可、小学校徒歩10分以内、公園5分以内、コンビニ5分以内、対面キッチン、都市ガス、システムキッチン、ガス3口、対面キッチン、浄水器、ユニットバス、追い焚き、浴室乾燥機、ウォシュレット、トイレ2ヶ所、暖房便座、バルコニー、2階建、LDK20畳以上、屋根裏収納、採光3面、東南向き、クローゼット、ウォークインクローゼット、収納、床下収納、下駄箱、屋根裏収納、全居室収納、洗面室収納、シャンプドレッサー付き、庭、モニタ付きインターフォン、ペアガラス、火災警報器、陽当り良好、24時間換気システム、建物10年保証 |
| 特記事項 | 壁面後退:有/景観法:有/宅地造成工事規制区域:有/日影制限:有/敷地面積最低限度:有/高さ限度:有/建築基準法第22条による区域 ゴミ協定書有り(ゴミ置場持分15分の1) 給水共用管に関する協定書有り。 / |
| 備考 | 「宮崎台」駅徒歩18分 溝の口駅へもバス便多数 タタミコーナーつき 全室お庭に面し陽当たり良好です |