新築一戸建
田園都市線 溝の口
田園都市線 溝の口駅 バス停「 新作八幡下」まで バス利用 9分 徒歩 10分 この駅が最寄り駅の物件一覧を見る
田園都市線 梶が谷駅 バス停「 新作八幡下」まで バス利用 13分 徒歩 9分
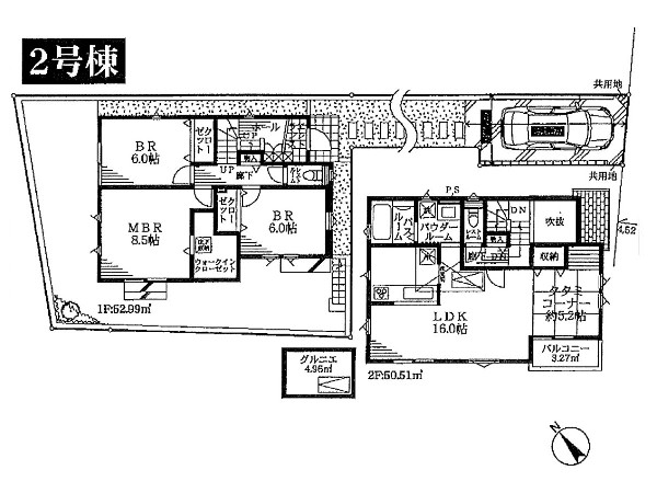
「溝の口」駅バス9分 LDK21.2帖に主寝室は8.5帖 全室収納に加え、季節物の収納に便利はグルニエ付き

| 学区 |
橘小学校 →この学区の物件一覧を見る 橘中学校 →この学区の物件一覧を見る |
|---|---|
| 用途地域 | 第一種中高層住居専用地域 |
| 地目 | 宅地 |
| 建ぺい率 | 60% |
| 容積率 | 180% |
| 駐車場 | 有り カースペース |
| 接道 | 南東4.5m |
| 権利 | 所有権 |
| 私道面積 | 無し |
|---|---|
| セットバック | 無し |
| 建物構造 | 木造 |
| 建物階数 | 2階 |
| 築年月 | 2025/11 |
| 入居日 | 2025/12 |
| 建築確認番号 | 第KBI-YKH25-10-0644号 |
| 都市計画 | 市街化区域 |
| 取引態様 | 仲介 |
| 物件番号 | Å1644-2 |
|---|---|
| 設備 | 都市ガス、公営水道、下水、吹き抜け、駐車場1台、高台に立地、緑豊かな住宅地、都市近郊、地盤調査済、市街地が近い、周辺交通量少なめ、2沿線以上利用可、公園5分以内、ウォークインクローゼット、対面キッチン、都市ガス、眺望良好、システムキッチン、ガス3口、対面キッチン、浄水器、ユニットバス、追い焚き、浴室乾燥機、ウォシュレット、オートバス付き、トイレ2ヶ所、浴室1坪以上、浴室に窓、暖房便座、浴室暖房、バルコニー、テラス、南面バルコニー、2階建、LDK20畳以上、屋根裏収納、採光3面、全室2面採光、南西向き、フローリング、クローゼット、ウォークインクローゼット、収納、床下収納、下駄箱、全居室収納、シャンプドレッサー付き、年内入居可、モニタ付きインターフォン、ペアガラス、火災警報器、通風良好、陽当り良好、24時間換気システム、建物10年保証 |
| 特記事項 | 文化財保護法:有/不整形地:有/景観法:有/宅地造成工事規制区域:有/高度地区:有/準防火地域:有/日影制限:有/高さ限度:有/建築基準法22条による区域/共有地に関する協定書有/ゴミ協定書有/敷地面積:路地状部分含む/雨水排水施設に関する協定書有/LDK20帖以上は畳コーナー含む。 / |
| 備考 | 「溝の口」駅バス9分 LDK21.2帖に主寝室は8.5帖 全室収納に加え、季節物の収納に便利はグルニエ付き |