横浜の一戸建てや土地を探すなら【ホームタウンよこはま】 横浜市瀬谷区 一戸建て 新築 今週末モデルハウス見学会開催中!「桜ケ丘」「瀬谷」駅利用 新築一戸建て(2) カースペース2台

新築一戸建

江ノ島線 桜ヶ丘

今週末モデルハウス見学会開催中!「桜ケ丘」「瀬谷」駅利用 新築一戸建て(2) カースペース2台

価格
4,530万円
所在地
横浜市瀬谷区 北新 このエリアの物件一覧を見る
交通

江ノ島線 桜ヶ丘駅 徒歩 18分 この駅が最寄り駅の物件一覧を見る

相模鉄道線 瀬谷駅 徒歩 26分

土地面積
133.77m²
建物面積
101.64m²
間取り
3LDK

小田急江ノ島線「桜ケ丘」駅、相鉄線「瀬谷」駅利用。開発分譲地内に付き住環境良好。南側のバルコニーは日当たり良好。LDKは会話が弾む対面キッチン。

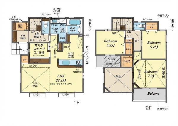
  • 間取り

    間取り:2号棟間取図
  • 区画図

    区画図
  •  

    準備中
  •  

    準備中

物件周辺マップ

本物件最寄り駅から 通勤・通学で利用する駅からの所要時間

利用駅 駅まで

利用駅 駅まで

所要時間は 分です

会員登録し、利用駅情報を記入されますと、全ての物件で自動的に所要時間が表示され大変便利です。

会員登録はこちら

※既に会員の方で、利用駅情報が未記入の場合はマイページから情報をご記入ください。

※未だ会員登録をされていない方は、利用駅をご記入ください。

ローンシミュレーション

この物件の月々のお支払額

ボーナス時お支払額(×年2回)

年収に対する返済比率で安全性をチェック

※会員登録し、詳細情報を記入されますと、全ての物件で自動的に金額が表示され、大変便利です。

※未だ会員登録をされていない方は、下記チェック欄をご記入ください。

※上記計算は物件価格 4,530万円+諸経費 8%込みの金額による結果となります。

※返済金額はあくまでも目安です。

お客様の条件から シミュレーションするには

会員登録してローン情報を入力しておくと

全ての物件に対してローンシミュレーションを表示できます

会員情報にシミュレーション条件が未登録のお客様

マイページからシミュレーション条件を登録する

ゲストとしてシミュレーションするお客様

ローンシミュレーションを入力する↓
金利

変動金利と固定金利の比較

金利優遇について

ボーナス払い(年2回)
   

ボーナス払いを設定する人って、実際どのくらいいるの?

ボーナス払いの設定の目安は?

返済年数
       

返済年数の決めかたを教えてください。

頭金
   

頭金の目安は?

頭金は多い方がよいのですか?

頭金なしで購入するのと、頭金を貯金してからとではどちらが良いのですか?

年収
万円

返済比率の決めかたを教えてください。

詳細概要

学区

瀬谷第二小学校 →この学区の物件一覧を見る

下瀬谷中学校 →この学区の物件一覧を見る

用途地域 第一種低層住居専用地域
地目 宅地
建ぺい率 50%
容積率 80%
駐車場 有り カースペース
接道 西6.5m
権利 所有権
私道面積 無し
セットバック 無し
建物構造 木造
建物階数 2階
築年月 2026/03
入居日 2026/04
建築確認番号 第R07SHC120474号
都市計画 市街化区域
取引態様 仲介
物件番号 48380-2
設備 都市ガス、公営水道、下水、吹き抜け、駐車場2台以上、緑豊かな住宅地、閑静な住宅地、前道6m以上、2沿線以上利用可、保育施設・幼稚園5分以内、公園5分以内、ウォークインクローゼット、対面キッチン、都市ガス、システムキッチン、ガス3口、カウンターキッチン、対面キッチン、I型キッチン、ユニットバス、追い焚き、ウォシュレット、トイレ2ヶ所、浴室に窓、暖房便座、バルコニー、南面バルコニー、2階建、LDK20畳以上、採光2面、採光3面、全室2面採光、フローリング、クローゼット、ウォークインクローゼット、収納、床下収納、下駄箱、全居室収納、シャンプドレッサー付き、モニタ付きインターフォン、インターフォン、24時間換気システム、建物10年保証、勾配天井
特記事項 不整形地 壁面後退 宅地造成工事規制区域 高度地区 日影制限 敷地面積最低限度 建物高さ10m以下 建築基準法第22条区域 その他持分3.25平米×1/22有 インナーバルコニー部分2.48平米、マルチステップ階段部分1.24平米含 不整形地:有/壁面後退:有/宅地造成工事規制区域:有/高度地区:有/日影制限:有/敷地面積最低限度:有/高さ限度:有/建築基準法第22条区域 その他持分3.25平米×1/22有 インナーバルコニー部分2.48平米、マルチステップ階段部分1.24平米含。 /
備考 小田急江ノ島線「桜ケ丘」駅、相鉄線「瀬谷」駅利用。開発分譲地内に付き住環境良好。南側のバルコニーは日当たり良好。LDKは会話が弾む対面キッチン。