新築一戸建
南武線 武蔵新城
南武線 武蔵新城駅 徒歩 3分 この駅が最寄り駅の物件一覧を見る
南武線 武蔵中原駅 徒歩 20分
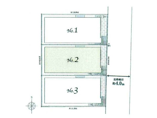
「武蔵新城」駅徒歩3分 商店街や商業・医療施設が充実した便利なエリアに全3棟の新築一戸建が誕生です

| 学区 |
新城小学校 →この学区の物件一覧を見る 西中原中学校 →この学区の物件一覧を見る |
|---|---|
| 用途地域 | 第二種住居地域 |
| 地目 | 宅地 |
| 建ぺい率 | 60% |
| 容積率 | 160% |
| 駐車場 | 有り ビルトイン車庫 |
| 接道 | 東4m |
| 権利 | 所有権 |
| 私道面積 | 無し |
|---|---|
| セットバック | 無し |
| 建物構造 | 木造 |
| 建物階数 | 3階 |
| 築年月 | 2025/11 |
| 入居日 | 2025/12 |
| 建築確認番号 | 第JAIC2024X0756A1号 |
| 都市計画 | 市街化区域 |
| 取引態様 | 仲介 |
| 物件番号 | A1761-2 |
|---|---|
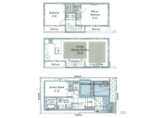
| 設備 | 都市ガス、公営水道、下水、防犯カメラ、防犯シャッター、宅配ロッカー、耐震構造、ビルトインガレージ、駐車場1台、区画整理地内、閑静な住宅地、平坦地、都市近郊、地盤調査済、市街地が近い、周辺交通量少なめ、スーパーが近い(10分以内)、駅まで平坦、総合病院徒歩10分以内、小学校徒歩10分以内、保育施設・幼稚園5分以内、公園5分以内、コンビニ5分以内、システムキッチン、ガス3口、対面キッチン、食器洗浄機、浄水器、ユニットバス、追い焚き、浴室乾燥機、ウォシュレット、トイレ2ヶ所、浴室1坪以上、浴室に窓、暖房便座、浴室暖房、バルコニー、南面バルコニー、3階建以上、LDK18畳以上、全居室6畳以上、採光3面、全室2面採光、リビング階段、クローゼット、ウォークインクローゼット、収納、床下収納、下駄箱、全居室収納、洗面室収納、シャンプドレッサー付き、フラット35Sに対応、年内入居可、モニタ付きインターフォン、ペアガラス、火災警報器、セキュリティ充実、通風良好、陽当り良好、24時間換気システム、ウォークインクローゼット、対面キッチン、都市ガス、建物10年保証 |
| 特記事項 | 景観法:有/宅地造成工事規制区域:有/高度地区:有/準防火地域:有/日影制限:有/高さ限度:有/間取りSは納戸 建物面積に車庫面積9.74平米を含む。 / |
| 備考 | 「武蔵新城」駅徒歩3分 商店街や商業・医療施設が充実した便利なエリアに全3棟の新築一戸建が誕生です |