新築一戸建
根岸線 山手
根岸線 山手駅 徒歩 25分 この駅が最寄り駅の物件一覧を見る
みなとみらい線 元町・中華街駅 バス停「 東福院前」まで バス利用 22分 徒歩 5分
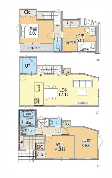
根岸線「山手」駅利用。日差しが取り込みやすく、プライバシーに配慮した2階LDKは、対面キッチン・リビングイン階段。食洗機・浴室乾燥機・ペアガラス他設備充実。

| 学区 |
間門小学校 →この学区の物件一覧を見る 本牧中学校 →この学区の物件一覧を見る |
|---|---|
| 用途地域 | 準住居地域 , 第一種低層住居専用地域 |
| 地目 | 宅地 |
| 建ぺい率 | 50% |
| 容積率 | 200% |
| 駐車場 | 有り カースペース |
| 接道 | 南7.5m |
| 権利 | 所有権 |
| 私道面積 | 無し |
|---|---|
| セットバック | 無し |
| 建物構造 | 木造 |
| 建物階数 | 3階 |
| 築年月 | 2026/01 |
| 入居日 | 即時 |
| 建築確認番号 | |
| 都市計画 | 市街化区域 |
| 取引態様 | 仲介 |
| 物件番号 | 48462-6 |
|---|---|
| 設備 | 都市ガス、公営水道、下水、駐車場1台、緑豊かな住宅地、閑静な住宅地、南側道路面す、前道6m以上、スーパーが近い(10分以内)、2沿線以上利用可、小学校徒歩10分以内、中学校徒歩10分以内、公園5分以内、シューズインクローク、対面キッチン、都市ガス、システムキッチン、ガス3口、カウンターキッチン、対面キッチン、L型キッチン、食器洗浄機、浄水器、I型キッチン、ユニットバス、追い焚き、浴室乾燥機、ウォシュレット、トイレ2ヶ所、浴室に窓、暖房便座、浴室暖房、バルコニー、南面バルコニー、3階建以上、LDK15畳以上、採光2面、フローリング、リビング階段、クローゼット、収納、全居室収納、シューズインクローク、シャンプドレッサー付き、モニタ付きインターフォン、ペアガラス、24時間換気システム、建物10年保証、勾配天井 |
| 特記事項 | 建築基準法第22条による区域 土砂災害警戒区域および土砂災害特別警戒区域 不整形地 宅地造成工事規制区域 急傾斜地崩壊危険区域 高度地区 準防火地域 日影制限 崖下につき建築制限 建物建築・再建築の際、防護壁の設置、高基礎、外壁後退等の対策が必要となる場合有。 崖下につき建築制限:有/不整形地:有/宅地造成工事規制区域:有/急傾斜地崩壊危険区域:有/高度地区:有/準防火地域:有/日影制限:有/建築基準法第22条による区域 土砂災害警戒区域および土砂災害特別警戒区域 建物建築・再建築の際、防護壁の設置、高基礎、外壁後退等の対策が必要となる場合有。 / |
| 備考 | 根岸線「山手」駅利用。日差しが取り込みやすく、プライバシーに配慮した2階LDKは、対面キッチン・リビングイン階段。食洗機・浴室乾燥機・ペアガラス他設備充実。 |