新築一戸建
根岸線 山手
根岸線 山手駅 徒歩 12分 この駅が最寄り駅の物件一覧を見る
東海道本線 横浜駅 バス停「 千代崎町」まで バス利用 24分 徒歩 11分
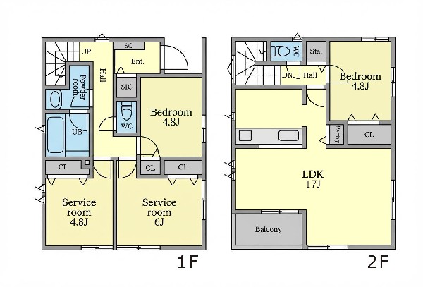
JR根岸線「山手」駅徒歩13分。陽の光を取り込みやすい2階リビング。会話が弾む対面キッチン。浴室乾燥機、食洗機他、設備充実。納戸も居室としてご利用可能。

| 学区 |
大鳥小学校 →この学区の物件一覧を見る 本牧中学校 →この学区の物件一覧を見る |
|---|---|
| 用途地域 | 第一種低層住居専用地域 |
| 地目 | 宅地 |
| 建ぺい率 | 60% |
| 容積率 | 100% |
| 駐車場 | 有り カースペース |
| 接道 | 北西6.4m |
| 権利 | 所有権 |
| 私道面積 | 無し |
|---|---|
| セットバック | 無し |
| 建物構造 | 木造 |
| 建物階数 | 2階 |
| 築年月 | 2025/10 |
| 入居日 | 即時 |
| 建築確認番号 | |
| 都市計画 | 市街化区域 |
| 取引態様 | 仲介 |
| 物件番号 | 48207-1 |
|---|---|
| 設備 | 都市ガス、公営水道、下水、緑豊かな住宅地、閑静な住宅地、前道6m以上、小学校徒歩10分以内、公園5分以内、対面キッチン、パントリー、都市ガス、システムキッチン、対面キッチン、食器洗浄機、浄水器、I型キッチン、パントリー(食器・食品の収納庫)、ユニットバス、追い焚き、浴室乾燥機、ウォシュレット、トイレ2ヶ所、浴室に窓、暖房便座、バルコニー、南面バルコニー、2階建、LDK15畳以上、南東角部屋、採光2面、採光3面、フローリング、クローゼット、収納、下駄箱、全居室収納、シャンプドレッサー付き、モニタ付きインターフォン、インターフォン、ペアガラス、24時間換気システム、建物10年保証 |
| 特記事項 | 不整形地 宅地造成工事規制区域 高度地区 準防火地域 日影制限 敷地面積最低限度 建物高さ10m以下 不燃化推進地域 建築基準法第22条区域 住みよいまち・本郷町3丁目地区協議会 防災まちづくり計画 不整形地:有/宅地造成工事規制区域:有/高度地区:有/準防火地域:有/日影制限:有/敷地面積最低限度:有/高さ限度:有/不燃化推進地域 建築基準法第22条区域 住みよいまち・本郷町3丁目地区協議会 防災まちづくり計画。 / |
| 備考 | JR根岸線「山手」駅徒歩13分。陽の光を取り込みやすい2階リビング。会話が弾む対面キッチン。浴室乾燥機、食洗機他、設備充実。納戸も居室としてご利用可能。 |