新築一戸建
田園都市線 宮前平
田園都市線 宮前平駅 バス停「 長沢」まで バス利用 15分 徒歩 3分 この駅が最寄り駅の物件一覧を見る
小田急線 新百合ヶ丘駅 バス停「 聖マリアンナ医大入口」まで バス利用 19分 徒歩 3分
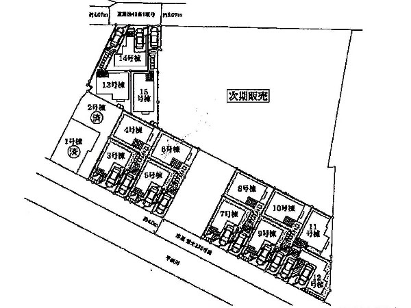
緑豊かな住宅地「宮前区菅生」全32棟の大規模分譲(今回販売13棟残り7棟)Wic等収納豊富な3階建

| 学区 |
菅生小学校 →この学区の物件一覧を見る 菅生中学校 →この学区の物件一覧を見る |
|---|---|
| 用途地域 | 第二種中高層住居専用地域 |
| 地目 | 宅地 |
| 建ぺい率 | 60% |
| 容積率 | 160% |
| 駐車場 | 有り ビルトイン車庫 |
| 接道 | 南西4m |
| 権利 | 所有権 |
| 私道面積 | 無し |
|---|---|
| セットバック | 無し |
| 建物構造 | 木造 |
| 建物階数 | 3階 |
| 築年月 | 2026/03 |
| 入居日 | 即時 |
| 建築確認番号 | 第KS125-3820-50257号 |
| 都市計画 | 市街化区域 |
| 取引態様 | 仲介 |
| 物件番号 | A2304-7 |
|---|---|
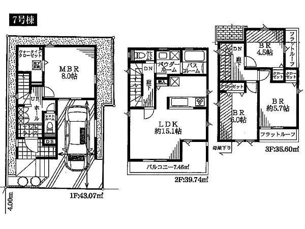
| 設備 | 都市ガス、公営水道、下水、ビルトインガレージ、駐車場1台、緑豊かな住宅地、閑静な住宅地、都市近郊、開発分譲地内、地盤調査済、市街地が近い、総合病院徒歩10分以内、中学校徒歩10分以内、コンビニ5分以内、ウォークインクローゼット、対面キッチン、パントリー、都市ガス、システムキッチン、ガス3口、対面キッチン、浄水器、パントリー(食器・食品の収納庫)、ユニットバス、追い焚き、浴室乾燥機、ウォシュレット、トイレ2ヶ所、浴室に窓、暖房便座、バルコニー、バルコニー2面、3階建以上、LDK15畳以上、採光3面、全室2面採光、フローリング、クローゼット、ウォークインクローゼット、収納、床下収納、下駄箱、全居室収納、シャンプドレッサー付き、庭、年内入居可、モニタ付きインターフォン、ペアガラス、火災警報器、通風良好、24時間換気システム、建物10年保証 |
| 特記事項 | 景観法:有/宅地造成工事規制区域:有/高度地区:有/準防火地域:有/日影制限:有/高さ限度:有/生産緑地地区 建物面積に車庫面積13.88m2含む ゴミ協定書A、B、C、設備共用管に関する協定書A、B、C有。 / |
| 備考 | 緑豊かな住宅地「宮前区菅生」全32棟の大規模分譲(今回販売13棟残り7棟)Wic等収納豊富な3階建 |