新築一戸建
田園都市線 宮前平
田園都市線 宮前平駅 バス停「 野川台東」まで バス利用 12分 徒歩 4分 この駅が最寄り駅の物件一覧を見る
南武線 武蔵新城駅 バス停「 野川小学校前」まで バス利用 14分 徒歩 10分
憧れのサウナ付きガレージハウス 無垢材と自然素材の家 幹太くん標準装備 外壁はドイツ漆喰仕上げです。

| 学区 |
西野川小学校 →この学区の物件一覧を見る 野川中学校 →この学区の物件一覧を見る |
|---|---|
| 用途地域 | 第一種低層住居専用地域 |
| 地目 | 宅地 |
| 建ぺい率 | 40% |
| 容積率 | 80% |
| 駐車場 | 有り カースペース |
| 接道 | 南東4m、北西5m |
| 権利 | 所有権 |
| 私道面積 | 無し |
|---|---|
| セットバック | 無し |
| 建物構造 | 木造 |
| 建物階数 | 2階 |
| 築年月 | 2026/03 |
| 入居日 | 2026/04 |
| 建築確認番号 | 第2025確認建築静住ま07816号 |
| 都市計画 | 市街化区域 |
| 取引態様 | 仲介 |
| 物件番号 | A2296 |
|---|---|
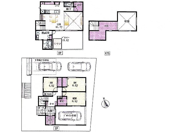
| 設備 | 都市ガス、公営水道、下水、吹き抜け、スレート葺、ビルトインガレージ、駐車場2台以上、緑豊かな住宅地、閑静な住宅地、都市近郊、地盤調査済、土地50坪以上、市街地が近い、周辺交通量少なめ、スーパーが近い(10分以内)、2沿線以上利用可、小学校徒歩10分以内、中学校徒歩10分以内、保育施設・幼稚園5分以内、公園5分以内、シューズインクローク、ウォークインクローゼット、対面キッチン、パントリー、都市ガス、システムキッチン、ガス3口、カウンターキッチン、対面キッチン、浄水器、I型キッチン、パントリー(食器・食品の収納庫)、ユニットバス、追い焚き、浴室乾燥機、ウォシュレット、トイレ2ヶ所、サウナ、浴室1坪以上、浴室に窓、暖房便座、浴室暖房、バルコニー、南面バルコニー、2階建、ロフト、玄関ホール、LDK20畳以上、省エネ給湯器、全室2面採光、南西向き、フローリング、リビング階段、自然素材、クローゼット、ウォークインクローゼット、収納、床下収納、下駄箱、全居室収納、洗面室収納、シューズインクローク、シャンプドレッサー付き、南庭、庭、年内入居可、モニタ付きインターフォン、ペアガラス、火災警報器、通風良好、陽当り良好、24時間換気システム、建物10年保証、電動シャッター |
| 特記事項 | 壁面後退:有/景観法:有/宅地造成工事規制区域:有/高度地区:有/日影制限:有/敷地内段差:有/接道と段差:有/敷地面積最低限度:有/高さ限度:有/建築基準法第22条による区域 建物面積に車庫面積約21.53m2含む 別途地下車庫17.50m2有 駐車4台可:平置き2台 ビルトイン車庫1台 地下車庫1台。 / |
| 備考 | 憧れのサウナ付きガレージハウス 無垢材と自然素材の家 幹太くん標準装備 外壁はドイツ漆喰仕上げです。 |