新築一戸建
グリーンライン 東山田
グリーンライン 東山田駅 徒歩 23分 この駅が最寄り駅の物件一覧を見る
田園都市線 鷺沼駅 バス停「 久末」まで バス利用 22分 徒歩 4分
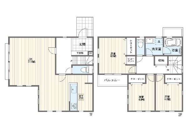
閑静な住宅街に位置した2階建て住宅 静かな日常を送ることの出来る住環境です 床暖房など充実の標準設備

| 学区 |
南野川小学校 →この学区の物件一覧を見る 野川中学校 →この学区の物件一覧を見る |
|---|---|
| 用途地域 | 第一種低層住居専用地域 , 第一種住居地域 |
| 地目 | 宅地 |
| 建ぺい率 | 40% / 60% |
| 容積率 | 80% / 200% |
| 駐車場 | 有り カースペース |
| 接道 | 西6m |
| 権利 | 所有権 |
| 私道面積 | 無し |
|---|---|
| セットバック | 無し |
| 建物構造 | 木造 |
| 建物階数 | 2階 |
| 築年月 | 2026/07 |
| 入居日 | 2026/07 |
| 建築確認番号 | 第KBI-SGM25-10-5401 |
| 都市計画 | 市街化区域 |
| 取引態様 | 仲介 |
| 物件番号 | A2221-5 |
|---|---|
| 設備 | 都市ガス、公営水道、下水、駐車場1台、緑豊かな住宅地、閑静な住宅地、都市近郊、開発分譲地内、地盤調査済、前道6m以上、市街地が近い、周辺交通量少なめ、2沿線以上利用可、小学校徒歩10分以内、公園5分以内、コンビニ5分以内、対面キッチン、都市ガス、システムキッチン、ガスコンロ、ガス3口、カウンターキッチン、対面キッチン、食器洗浄機、浄水器、ユニットバス、追い焚き、浴室乾燥機、ウォシュレット、オートバス付き、トイレ2ヶ所、浴室1坪以上、浴室に窓、暖房便座、浴室暖房、バルコニー、テラス、南面バルコニー、2階建、LDK20畳以上、全室南向き、南向き、全室2面採光、フローリング、全室フローリング、クローゼット、収納、床下収納、下駄箱、全居室収納、シャンプドレッサー付き、庭、年内入居可、モニタ付きインターフォン、ペアガラス、火災警報器、セキュリティ充実、通風良好、陽当り良好、24時間換気システム、建物10年保証 |
| 特記事項 | 壁面後退:有/景観法:有/宅地造成工事規制区域:有/高度地区:有/準防火地域:有/日影制限:有/敷地内段差:有/敷地面積最低限度:有/高さ限度:有。 / |
| 備考 | 閑静な住宅街に位置した2階建て住宅 静かな日常を送ることの出来る住環境です 床暖房など充実の標準設備 |