新築一戸建
田園都市線 宮崎台
田園都市線 宮崎台駅 徒歩 22分 この駅が最寄り駅の物件一覧を見る
田園都市線 宮前平駅 バス停「 馬絹神社前」まで バス利用 9分 徒歩 8分
「宮崎台」駅徒歩圏 宮前平、武蔵新城駅にバス便多数の閑静な住宅街 公園まで徒歩2分で子育てに優しい環境

| 学区 |
西野川小学校 →この学区の物件一覧を見る 野川中学校 →この学区の物件一覧を見る |
|---|---|
| 用途地域 | 第一種低層住居専用地域 |
| 地目 | 雑種地 |
| 建ぺい率 | 50% |
| 容積率 | 80% |
| 駐車場 | 有り カースペース |
| 接道 | 北5.6m |
| 権利 | 所有権 |
| 私道面積 | 無し |
|---|---|
| セットバック | 無し |
| 建物構造 | 木造 |
| 建物階数 | 2階 |
| 築年月 | 2026/02 |
| 入居日 | 2026/03 |
| 建築確認番号 | |
| 都市計画 | 市街化区域 |
| 取引態様 | 仲介 |
| 物件番号 | A2199 |
|---|---|
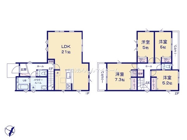
| 設備 | 都市ガス、公営水道、下水、防犯シャッター、省エネルギー対策、駐車場2台以上、整形地、閑静な住宅地、都市近郊、地盤調査済、市街地が近い、周辺交通量少なめ、スーパーが近い(10分以内)、公園5分以内、対面キッチン、都市ガス、整形地、システムキッチン、ガス3口、対面キッチン、食器洗浄機、浄水器、ユニットバス、追い焚き、浴室乾燥機、ウォシュレット、トイレ2ヶ所、浴室1坪以上、暖房便座、バルコニー、バルコニー2面、南面バルコニー、2階建、LDK20畳以上、採光3面、全室2面採光、南西向き、フローリング、全室フローリング、クローゼット、収納、下駄箱、全居室収納、シャンプドレッサー付き、フラット35Sに対応、年度内入居可、モニタ付きインターフォン、ペアガラス、火災警報器、通風良好、陽当り良好、24時間換気システム、建物10年保証 |
| 特記事項 | 壁面後退:有/景観法:有/宅地造成工事規制区域:有/日影制限:有/敷地面積最低限度:有/高さ限度:有/建築基準法第22条による区域/駐車は車種により2台可/法外道路持分:53平米の1/4有り。 / |
| 備考 | 「宮崎台」駅徒歩圏 宮前平、武蔵新城駅にバス便多数の閑静な住宅街 公園まで徒歩2分で子育てに優しい環境 |