新築一戸建
田園都市線 鷺沼
田園都市線 鷺沼駅 バス停「 野川台西口」まで バス利用 15分 徒歩 3分 この駅が最寄り駅の物件一覧を見る
東急東横線 武蔵小杉駅 バス停「 野川台公園前」まで バス利用 30分 徒歩 9分
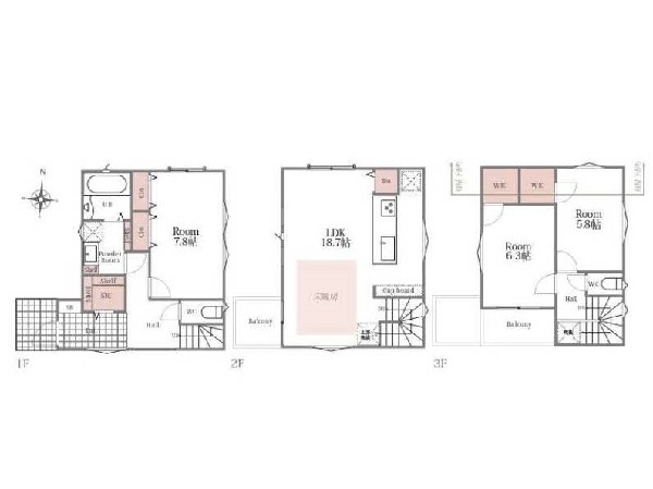
宮崎台駅徒歩圏内 落ち着きのある住宅地 周辺には生活便利施設が充実 床暖房・食洗機など充実の設備

| 学区 |
宮崎小学校 →この学区の物件一覧を見る 宮崎中学校 →この学区の物件一覧を見る |
|---|---|
| 用途地域 | 第一種中高層住居専用地域 |
| 地目 | 宅地 |
| 建ぺい率 | 60% |
| 容積率 | 200% |
| 駐車場 | 有り カースペース |
| 接道 | 南西5.8m |
| 権利 | 所有権 |
| 私道面積 | 無し |
|---|---|
| セットバック | 無し |
| 建物構造 | 木造 |
| 建物階数 | 3階 |
| 築年月 | 2025/12 |
| 入居日 | 即時 |
| 建築確認番号 | |
| 都市計画 | 市街化区域 |
| 取引態様 | 仲介 |
| 物件番号 | A2156-2 |
|---|---|
| 設備 | 都市ガス、公営水道、下水、宅配ロッカー、吹き抜け、省エネルギー対策、駐車場1台、閑静な住宅地、都市近郊、地盤調査済、市街地が近い、周辺交通量少なめ、スーパーが近い(10分以内)、2沿線以上利用可、保育施設・幼稚園5分以内、公園5分以内、コンビニ5分以内、システムキッチン、ガスコンロ、ガス3口、カウンターキッチン、対面キッチン、食器洗浄機、浄水器、パントリー(食器・食品の収納庫)、ユニットバス、追い焚き、浴室乾燥機、ウォシュレット、オートバス付き、トイレ2ヶ所、浴室1坪以上、浴室に窓、暖房便座、浴室暖房、バルコニー、バルコニー2面、南面バルコニー、3階建以上、LDK18畳以上、省エネ給湯器、採光3面、南向き、全室2面採光、フローリング、全室フローリング、リビング階段、クローゼット、ウォークインクローゼット、収納、下駄箱、全居室収納、洗面室収納、シューズインクローク、シャンプドレッサー付き、年内入居可、モニタ付きインターフォン、ペアガラス、火災警報器、通風良好、陽当り良好、24時間換気システム、シューズインクローク、ウォークインクローゼット、対面キッチン、パントリー、都市ガス、建物10年保証 |
| 特記事項 | 不整形地:有/景観法:有/宅地造成工事規制区域:有/高度地区:有/準防火地域:有/日影制限:有/高さ限度:有/土地面積に路地状部分約20平米含む。 / |
| 備考 | 宮崎台駅徒歩圏内 落ち着きのある住宅地 周辺には生活便利施設が充実 床暖房・食洗機など充実の設備 |