新築一戸建
田園都市線 宮崎台
田園都市線 宮崎台駅 徒歩 22分 この駅が最寄り駅の物件一覧を見る
南武線 津田山駅 徒歩 22分
スタイリッシュな内外観の6棟 東高根森林公園が近く、都市の利便性と豊かな自然を感じられる立地です。

| 学区 |
平小学校 →この学区の物件一覧を見る 向丘中学校 →この学区の物件一覧を見る |
|---|---|
| 用途地域 | 第一種低層住居専用地域 |
| 地目 | 宅地 |
| 建ぺい率 | 50% |
| 容積率 | 80% |
| 駐車場 | 有り カースペース |
| 接道 | 北5m |
| 権利 | 所有権 |
| 私道面積 | 無し |
|---|---|
| セットバック | 無し |
| 建物構造 | 木造 |
| 建物階数 | 2階 |
| 築年月 | 2026/05 |
| 入居日 | 2026/06 |
| 建築確認番号 | 第KBI-SGM25-10-4730 |
| 都市計画 | 市街化区域 |
| 取引態様 | 仲介 |
| 物件番号 | A2146-5 |
|---|---|
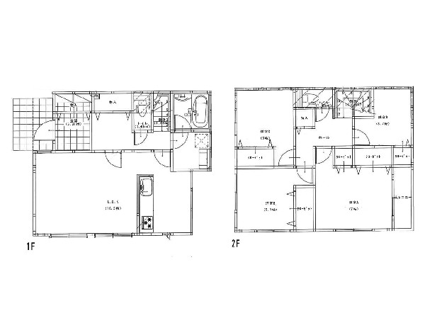
| 設備 | 都市ガス、公営水道、下水、駐車場2台以上、緑豊かな住宅地、閑静な住宅地、平坦地、都市近郊、地盤調査済、市街地が近い、周辺交通量少なめ、スーパーが近い(10分以内)、2沿線以上利用可、中学校徒歩10分以内、保育施設・幼稚園5分以内、公園5分以内、コンビニ5分以内、対面キッチン、都市ガス、システムキッチン、ガスコンロ、ガス3口、カウンターキッチン、対面キッチン、食器洗浄機、浄水器、ユニットバス、追い焚き、浴室乾燥機、ウォシュレット、オートバス付き、トイレ2ヶ所、浴室1坪以上、浴室に窓、暖房便座、浴室暖房、バルコニー、2階建、LDK15畳以上、採光3面、全室2面採光、フローリング、全室フローリング、クローゼット、収納、床下収納、下駄箱、全居室収納、シャンプドレッサー付き、年内入居可、モニタ付きインターフォン、ペアガラス、火災警報器、セキュリティ充実、通風良好、陽当り良好、24時間換気システム、建物10年保証 |
| 特記事項 | 不整形地:有/壁面後退:有/景観法:有/宅地造成工事規制区域:有/高度地区:有/日影制限:有/敷地面積最低限度:有/高さ限度:有/建築基準法22条区域、敷地面積のうち路地状敷地面積約35.9m2含む、駐車は車種により2台可。 / |
| 備考 | スタイリッシュな内外観の6棟 東高根森林公園が近く、都市の利便性と豊かな自然を感じられる立地です。 |