中古一戸建
田園都市線 鷺沼
田園都市線 鷺沼駅 徒歩 14分 この駅が最寄り駅の物件一覧を見る
田園都市線 宮前平駅 徒歩 10分
再開発が進む「鷺沼」駅も利用可能 都内へのアクセスも良く通勤・通学に便利な立地。周辺にはお買物施設も充実

| 学区 |
宮崎小学校 →この学区の物件一覧を見る 宮崎中学校 →この学区の物件一覧を見る |
|---|---|
| 用途地域 | 第一種低層住居専用地域 |
| 地目 | 宅地 |
| 建ぺい率 | 50% |
| 容積率 | 80% |
| 駐車場 | 有り カースペース |
| 接道 | 西4m |
| 権利 | 所有権 |
| 私道面積 | 無し |
|---|---|
| セットバック | 無し |
| 建物構造 | 木造 |
| 建物階数 | 2階 |
| 築年月 | 2010/07 |
| 入居日 | 即時 |
| 建築確認番号 | |
| 都市計画 | 市街化区域 |
| 取引態様 | 専任 |
| 物件番号 | A1973 |
|---|---|
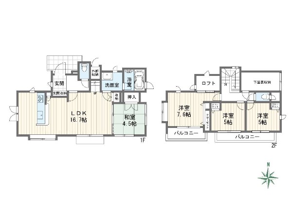
| 設備 | 都市ガス、公営水道、下水、整形地、閑静な住宅地、都市近郊、市街地が近い、周辺交通量少なめ、スーパーが近い(10分以内)、小学校徒歩10分以内、保育施設・幼稚園5分以内、コンビニ5分以内、システムキッチン、ガス3口、対面キッチン、ユニットバス、追い焚き、浴室乾燥機、ウォシュレット、オートバス付き、トイレ2ヶ所、浴室1坪以上、浴室に窓、暖房便座、バルコニー、テラス、外装リフォーム、2階建、LDK15畳以上、省エネ給湯器、採光2面、リビング階段、クローゼット、押し入れ、収納、下駄箱、屋根裏収納、全居室収納、シャンプドレッサー付き、モニタ付きインターフォン、カードキー、ペアガラス、火災警報器、全居室複層ガラスか複層サッシ、24時間換気システム、対面キッチン、都市ガス、整形地 |
| 特記事項 | 壁面後退:有/景観法:有/宅地造成工事規制区域:有/高度地区:有/日影制限:有/敷地面積最低限度:有/高さ限度:有/建築基準法第22条区域。 /外装リフォーム…2024年01月(外壁) |
| 備考 | 再開発が進む「鷺沼」駅も利用可能 都内へのアクセスも良く通勤・通学に便利な立地。周辺にはお買物施設も充実 |