新築一戸建
田園都市線 宮前平
田園都市線 宮前平駅 徒歩 26分 この駅が最寄り駅の物件一覧を見る
南武線 武蔵溝ノ口駅 バス停「 向丘出張所」まで バス利用 12分 徒歩 4分
宮前平駅徒歩圏 溝の口駅にもバス便多数 WICや床下、洗面所にも収納たっぷりの新築一戸建て全3棟が誕生

| 学区 |
向丘小学校 →この学区の物件一覧を見る 平中学校 →この学区の物件一覧を見る |
|---|---|
| 用途地域 | 第一種中高層住居専用地域 |
| 地目 | 宅地 |
| 建ぺい率 | 60% |
| 容積率 | 160% |
| 駐車場 | 有り ビルトイン車庫 |
| 接道 | 南4m |
| 権利 | 所有権 |
| 私道面積 | 無し |
|---|---|
| セットバック | 無し |
| 建物構造 | 木造 |
| 建物階数 | 3階 |
| 築年月 | 2026/01 |
| 入居日 | 2026/02 |
| 建築確認番号 | 第2025SBC-確00474Y号 |
| 都市計画 | 市街化区域 |
| 取引態様 | 仲介 |
| 物件番号 | A1915-2 |
|---|---|
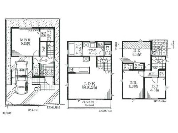
| 設備 | 都市ガス、公営水道、下水、2×4工法、耐震構造、ビルトインガレージ、駐車場1台、整形地、閑静な住宅地、平坦地、都市近郊、地盤調査済、南側道路面す、市街地が近い、周辺交通量少なめ、スーパーが近い(10分以内)、2沿線以上利用可、小学校徒歩10分以内、コンビニ5分以内、対面キッチン、都市ガス、整形地、システムキッチン、ガス3口、対面キッチン、浄水器、ユニットバス、追い焚き、浴室乾燥機、ウォシュレット、トイレ2ヶ所、浴室に窓、暖房便座、バルコニー、南面バルコニー、3階建以上、LDK15畳以上、採光3面、南向き、全室2面採光、フローリング、全室フローリング、リビング階段、クローゼット、ウォークインクローゼット、収納、床下収納、下駄箱、全居室収納、洗面室収納、シャンプドレッサー付き、年度内入居可、モニタ付きインターフォン、ペアガラス、火災警報器、通風良好、陽当り良好、24時間換気システム、建物10年保証 |
| 特記事項 | 景観法:有/宅地造成工事規制区域:有/高度地区:有/準防火地域:有/日影制限:有/高さ限度:有/建物面積に車庫面積13.43平米を含む/ゴミ協定書有り/給水共用管に関する協定書有り/共用地に関する協定書有り。 / |
| 備考 | 宮前平駅徒歩圏 溝の口駅にもバス便多数 WICや床下、洗面所にも収納たっぷりの新築一戸建て全3棟が誕生 |