新築一戸建
田園都市線 鷺沼
田園都市線 鷺沼駅 バス停「 和田八幡宮下」まで バス利用 15分 徒歩 1分 この駅が最寄り駅の物件一覧を見る
グリーンライン 東山田駅 徒歩 22分
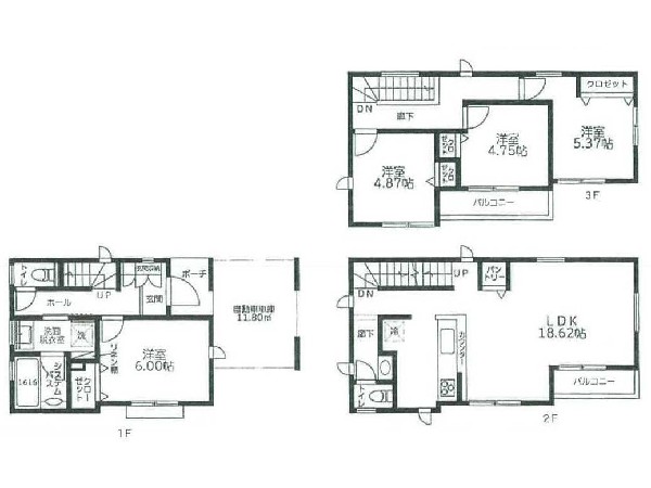
南側通路のため採光良好 プライバシーに配慮した2階リビング ご家族の一体感が高まる対面キッチン採用

| 学区 |
南野川小学校 →この学区の物件一覧を見る 野川中学校 →この学区の物件一覧を見る |
|---|---|
| 用途地域 | 第一種住居地域 |
| 地目 | 宅地 |
| 建ぺい率 | 60% |
| 容積率 | 200% |
| 駐車場 | 有り ビルトイン車庫 |
| 接道 | 北7.2m |
| 権利 | 所有権 |
| 私道面積 | 無し |
|---|---|
| セットバック | 無し |
| 建物構造 | 木造 |
| 建物階数 | 3階 |
| 築年月 | 2026/05 |
| 入居日 | 2026/06 |
| 建築確認番号 | 25UDI1K建01089 |
| 都市計画 | 市街化区域 |
| 取引態様 | 仲介 |
| 物件番号 | A1790-1 |
|---|---|
| 設備 | 都市ガス、公営水道、下水、防犯シャッター、外壁サイディング、ビルトインガレージ、駐車場1台、緑豊かな住宅地、閑静な住宅地、都市近郊、地盤調査済、前道6m以上、市街地が近い、小学校徒歩10分以内、公園5分以内、コンビニ5分以内、対面キッチン、パントリー、都市ガス、システムキッチン、ガスコンロ、ガス3口、カウンターキッチン、対面キッチン、食器洗浄機、浄水器、パントリー(食器・食品の収納庫)、ユニットバス、追い焚き、浴室乾燥機、ウォシュレット、トイレ2ヶ所、TV付浴室、浴室1坪以上、浴室に窓、暖房便座、セカンド洗面台、浴室暖房、バルコニー、テラス、南面バルコニー、3階建以上、LDK18畳以上、採光3面、全室南向き、南向き、フローリング、全室フローリング、リビング階段、スマートキー、クローゼット、収納、床下収納、下駄箱、全居室収納、洗面室収納、シャンプドレッサー付き、モニタ付きインターフォン、ペアガラス、火災警報器、通風良好、陽当り良好、24時間換気システム、建物10年保証 |
| 特記事項 | 景観法:有/宅地造成工事規制区域:有/高度地区:有/準防火地域:有/日影制限:有/高さ限度:有/車庫面積11.80平米含。 / |
| 備考 | 南側通路のため採光良好 プライバシーに配慮した2階リビング ご家族の一体感が高まる対面キッチン採用 |