新築一戸建
田園都市線 宮前平
田園都市線 宮前平駅 バス停「 野川台東」まで バス利用 12分 徒歩 1分 この駅が最寄り駅の物件一覧を見る
南武線 武蔵中原駅 バス停「 野川台」まで バス利用 16分 徒歩 4分
「宮前平」駅 バス停まで1分 畳コーナーのある落ち着いたリビング 太陽光パネルつき新築全3棟が誕生です

| 学区 |
野川小学校 →この学区の物件一覧を見る 野川中学校 →この学区の物件一覧を見る |
|---|---|
| 用途地域 | 第二種低層住居専用地域 |
| 地目 | 宅地 |
| 建ぺい率 | 50% |
| 容積率 | 100% |
| 駐車場 | 有り カースペース |
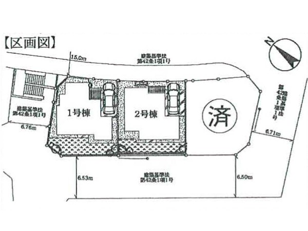
| 接道 | 北東16m、北西6.7m、南西6.5m |
| 権利 | 所有権 |
| 私道面積 | 無し |
|---|---|
| セットバック | 無し |
| 建物構造 | 木造 |
| 建物階数 | 2階 |
| 築年月 | 2026/03 |
| 入居日 | 2026/04 |
| 建築確認番号 | 第KS125-3820-50285号 |
| 都市計画 | 市街化区域 |
| 取引態様 | 仲介 |
| 物件番号 | A1772-1 |
|---|---|
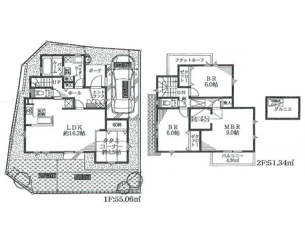
| 設備 | 都市ガス、公営水道、下水、耐震構造、駐車場1台、高台に立地、角地、都市近郊、地盤調査済、南側道路面す、前道6m以上、市街地が近い、2沿線以上利用可、小学校徒歩10分以内、中学校徒歩10分以内、公園5分以内、コンビニ5分以内、システムキッチン、ガス3口、対面キッチン、L型キッチン、浄水器、ユニットバス、追い焚き、浴室乾燥機、ウォシュレット、トイレ2ヶ所、浴室に窓、暖房便座、バルコニー、テラス、南面バルコニー、2階建、LDK15畳以上、全居室6畳以上、屋根裏収納、太陽光発電システム、採光3面、全室2面採光、南西向き、クローゼット、ウォークインクローゼット、収納、床下収納、下駄箱、屋根裏収納、全居室収納、洗面室収納、シャンプドレッサー付き、フラット35Sに対応、モニタ付きインターフォン、ペアガラス、火災警報器、通風良好、陽当り良好、24時間換気システム、ウォークインクローゼット、対面キッチン、都市ガス、建物10年保証 |
| 特記事項 | 建築基準法第22条による区域 再建築の際は擁壁側にRC造りの防護壁を設ける必要があります/崖上につき建築制限:有/隅切り:有/壁面後退:有/景観法:有/宅地造成工事規制区域:有/高度地区:有/日影制限:有/敷地面積最低限度:有/高さ限度:有。 / |
| 備考 | 「宮前平」駅 バス停まで1分 畳コーナーのある落ち着いたリビング 太陽光パネルつき新築全3棟が誕生です |