新築一戸建
南武線 武蔵新城
南武線 武蔵新城駅 バス停「 野川小学校」まで バス利用 14分 徒歩 4分 この駅が最寄り駅の物件一覧を見る
田園都市線 宮前平駅 バス停「 野川小学校」まで バス利用 11分 徒歩 4分
平坦エリア 敷地と道路にも高低差が無くお車の出し入れもラクラク。床暖房、食洗機など充実の標準設備です

| 学区 |
野川小学校 →この学区の物件一覧を見る 野川中学校 →この学区の物件一覧を見る |
|---|---|
| 用途地域 | 第一種住居地域 |
| 地目 | 宅地 |
| 建ぺい率 | 60% |
| 容積率 | 200% |
| 駐車場 | 有り ビルトイン車庫 |
| 接道 | 西6.5m |
| 権利 | 所有権 |
| 私道面積 | 無し |
|---|---|
| セットバック | 無し |
| 建物構造 | 木造 |
| 建物階数 | 3階 |
| 築年月 | 2026/02 |
| 入居日 | 2026/03 |
| 建築確認番号 | 第AI建築00-2500323号 |
| 都市計画 | 市街化区域 |
| 取引態様 | 仲介 |
| 物件番号 | A1675-B |
|---|---|
| 設備 | 都市ガス、公営水道、下水、ビルトインガレージ、駐車場1台、緑豊かな住宅地、閑静な住宅地、平坦地、都市近郊、地盤調査済、前道6m以上、市街地が近い、スーパーが近い(10分以内)、2沿線以上利用可、小学校徒歩10分以内、中学校徒歩10分以内、コンビニ5分以内、対面キッチン、都市ガス、システムキッチン、ガス3口、対面キッチン、食器洗浄機、浄水器、ユニットバス、追い焚き、浴室乾燥機、ウォシュレット、オートバス付き、トイレ2ヶ所、浴室1坪以上、浴室に窓、暖房便座、バルコニー、3階建以上、LDK18畳以上、採光2面、リビング階段、クローゼット、収納、床下収納、下駄箱、全居室収納、シャンプドレッサー付き、モニタ付きインターフォン、ペアガラス、火災警報器、24時間換気システム、建物10年保証 |
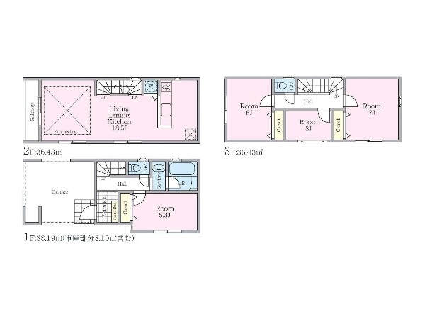
| 特記事項 | 景観法:有/宅地造成工事規制区域:有/高度地区:有/準防火地域:有/日影制限:有/高さ限度:有/建物面積のうち車庫部分面積8.1m2含む、間取りSは納戸。 / |
| 備考 | 平坦エリア 敷地と道路にも高低差が無くお車の出し入れもラクラク。床暖房、食洗機など充実の標準設備です |