新築一戸建
ブルーライン 阪東橋
ブルーライン 阪東橋駅 徒歩 17分 この駅が最寄り駅の物件一覧を見る
根岸線 桜木町駅 バス停「 平楽中学校前」まで バス利用 24分 徒歩 1分
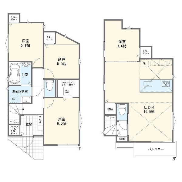
地下鉄BL「阪東橋」駅利用。ペアガラス他、設備充実。WIC・SIC完備。対面キッチン・リビングイン階段。納戸もお部屋としてご利用いただけます。

| 学区 |
石川小学校 →この学区の物件一覧を見る 平楽中学校 →この学区の物件一覧を見る |
|---|---|
| 用途地域 | 第一種低層住居専用地域 |
| 地目 | 宅地 |
| 建ぺい率 | 60% |
| 容積率 | 100% |
| 駐車場 | 有り カースペース |
| 接道 | 東7.1m |
| 権利 | 所有権 |
| 私道面積 | 無し |
|---|---|
| セットバック | 無し |
| 建物構造 | 木造 |
| 建物階数 | 2階 |
| 築年月 | 2026/03 |
| 入居日 | 2026/04 |
| 建築確認番号 | 第25KAK建確02400号 |
| 都市計画 | 市街化区域 |
| 取引態様 | 仲介 |
| 物件番号 | 48525-3 |
|---|---|
| 設備 | 都市ガス、公営水道、下水、駐車場1台、緑豊かな住宅地、閑静な住宅地、前道6m以上、始発駅、2沿線以上利用可、小学校徒歩10分以内、中学校徒歩10分以内、保育施設・幼稚園5分以内、公園5分以内、コンビニ5分以内、シューズインクローク、ウォークインクローゼット、対面キッチン、都市ガス、システムキッチン、ガス3口、対面キッチン、食器洗浄機、浄水器、I型キッチン、ユニットバス、追い焚き、浴室乾燥機、ウォシュレット、トイレ2ヶ所、浴室に窓、暖房便座、浴室暖房、バルコニー、南面バルコニー、2階建、LDK15畳以上、採光3面、全室2面採光、全室フローリング、リビング階段、クローゼット、ウォークインクローゼット、収納、床下収納、下駄箱、全居室収納、シューズインクローク、シャンプドレッサー付き、モニタ付きインターフォン、ペアガラス、全居室複層ガラスか複層サッシ、24時間換気システム、建物10年保証、勾配天井 |
| 特記事項 | 不整形地 宅地造成工事規制区域 高度地区 準防火地域 日影制限 敷地面積最低限度 建物高さ10m以下 建築基準法第22条区域 不燃化推進地域 敷地延長約5割有 不整形地:有/宅地造成工事規制区域:有/高度地区:有/準防火地域:有/日影制限:有/敷地面積最低限度:有/高さ限度:有/建築基準法第22条区域 不燃化推進地域 敷地延長約5割有。 / |
| 備考 | 地下鉄BL「阪東橋」駅利用。ペアガラス他、設備充実。WIC・SIC完備。対面キッチン・リビングイン階段。納戸もお部屋としてご利用いただけます。 |