新築一戸建
横浜線 鴨居
横浜線 鴨居駅 バス停「 白山高校」まで バス利用 12分 徒歩 5分 この駅が最寄り駅の物件一覧を見る
グリーンライン 中山駅 バス停「 白山高校」まで バス利用 21分 徒歩 5分
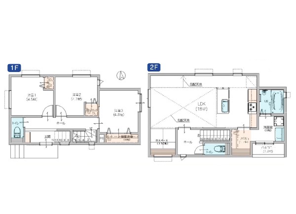
勾配天井仕様の開放感溢れる2階リビング タタミコーナー付き お洒落なアイランドキッチン ファミリークローゼットと洗面室が繋がる家事動線の良い間取り ガス乾燥機(乾太くん)装備 充実の設備・仕様

| 学区 |
上山小学校 800m →この学区の物件一覧を見る 中山中学校 1300m →この学区の物件一覧を見る |
|---|---|
| 用途地域 | 第一種低層住居専用地域 |
| 地目 | 宅地 |
| 建ぺい率 | 50% |
| 容積率 | 80% |
| 駐車場 | 有り カースペース |
| 接道 | 西10m |
| 権利 | 所有権 |
| 私道面積 | 無し |
|---|---|
| セットバック | 無し |
| 建物構造 | 木造 |
| 建物階数 | 2階 |
| 築年月 | 2026/06 |
| 入居日 | 2026/07 |
| 建築確認番号 | 第2025SBC-確02228H号 |
| 都市計画 | 市街化区域 |
| 取引態様 | 仲介 |
| 物件番号 | P1165 |
|---|---|
| 設備 | 都市ガス、公営水道、下水、防犯シャッター、宅配ロッカー、省エネルギー対策、駐車場1台、緑豊かな住宅地、閑静な住宅地、都市近郊、地盤調査済、前道6m以上、市街地が近い、整備された歩道、スーパーが近い(10分以内)、始発駅、2沿線以上利用可、小学校徒歩10分以内、中学校徒歩10分以内、公園5分以内、対面キッチン、都市ガス、システムキッチン、対面キッチン、食器洗浄機、浄水器、オープンキッチン、アイランドキッチン、ユニットバス、追い焚き、浴室乾燥機、ウォシュレット、オートバス付き、トイレ2ヶ所、浴室1坪以上、浴室に窓、暖房便座、浴室暖房、バルコニー、南面バルコニー、2階建、LDK18畳以上、採光2面、フローリング、天井高2.5m以上、クローゼット、収納、床下収納、クローゼット3ヶ所、下駄箱、全居室収納、洗面室収納、シャンプドレッサー付き、フラット35Sに対応、年内入居可、モニタ付きインターフォン、ペアガラス、火災警報器、通風良好、陽当り良好、24時間換気システム、建物10年保証、勾配天井 |
| 特記事項 | 不整形地:有/宅地造成工事規制区域:有/高度地区:有/日影制限:有/敷地内段差:有/敷地面積最低限度:有/高さ限度:有/緑化地域、建築基準法第22条による区域、横浜市建築基準条例第3条による制限有、法第53条の2第3項の既存不適格確認済。 / |
| 備考 | 勾配天井仕様の開放感溢れる2階リビング タタミコーナー付き お洒落なアイランドキッチン ファミリークローゼットと洗面室が繋がる家事動線の良い間取り ガス乾燥機(乾太くん)装備 充実の設備・仕様 |