中古一戸建
横浜線 十日市場
横浜線 十日市場駅 徒歩 14分 この駅が最寄り駅の物件一覧を見る
田園都市線 長津田駅 徒歩 19分
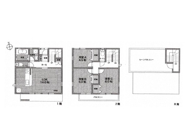
室内クリーニング実施 田園都市線など2路線利用可能 大型ルーフバルコニー 冷暖房効率の良い玄関階段 床暖房

| 学区 |
いぶき野小学校 →この学区の物件一覧を見る 田奈中学校 →この学区の物件一覧を見る |
|---|---|
| 用途地域 | 第一種低層住居専用地域 |
| 地目 | 宅地 |
| 建ぺい率 | 40% |
| 容積率 | 80% |
| 駐車場 | 有り カーポート |
| 接道 | 南東4.5m、東4.4m |
| 権利 | 所有権 |
| 私道面積 | 無し |
|---|---|
| セットバック | 無し |
| 建物構造 | 木造 |
| 建物階数 | 2階 |
| 築年月 | 2015/02 |
| 入居日 | 即時 |
| 建築確認番号 | |
| 都市計画 | 市街化区域 |
| 取引態様 | 仲介 |
| 物件番号 | P1109 |
|---|---|
| 設備 | 都市ガス、公営水道、下水、スレート葺、陸屋根、駐車場1台、高台に立地、緑豊かな住宅地、閑静な住宅地、角地、都市近郊、土地50坪以上、南側道路面す、市街地が近い、隣家との間隔が大きい、周辺交通量少なめ、ゴルフ場が近い、テニスコートが近い、スーパーが近い(10分以内)、始発駅、2沿線以上利用可、総合病院徒歩10分以内、小学校徒歩10分以内、公園5分以内、対面キッチン、都市ガス、眺望良好、システムキッチン、カウンターキッチン、対面キッチン、ユニットバス、トイレ2ヶ所、浴室1坪以上、浴室に窓、バルコニー、バルコニー2面、ルーフバルコニー、ワイドバルコニー、南面バルコニー、2階建、採光3面、南向き、全室2面採光、フローリング、クローゼット、収納、下駄箱、全居室収納、シャンプドレッサー付き、南庭、庭、10以上の庭、年内入居可、通風良好、陽当り良好、眺望良好 |
| 特記事項 | 壁面後退:有/宅地造成工事規制区域:有/高度地区:有/日影制限:有/敷地面積最低限度:有/高さ限度:有/緑化地域 建築基準法第22条による区域 横浜市建築基準条例第3条による制限有。 / |
| 備考 | 室内クリーニング実施 田園都市線など2路線利用可能 大型ルーフバルコニー 冷暖房効率の良い玄関階段 床暖房 |