新築一戸建
横浜線 長津田
横浜線 長津田駅 徒歩 7分 この駅が最寄り駅の物件一覧を見る
田園都市線 田奈駅 徒歩 10分
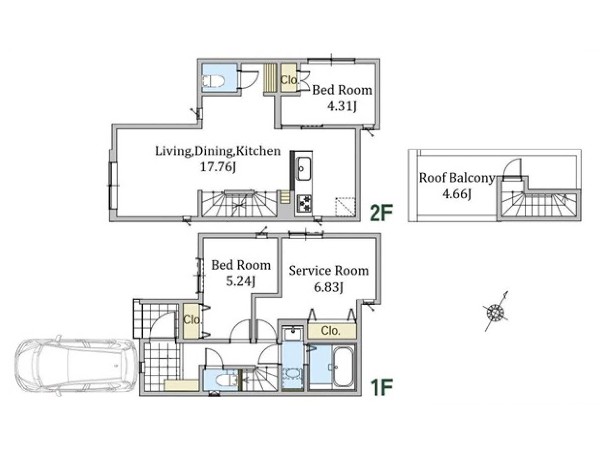
「長津田」駅徒歩7分の好立地! 公園・スーパー・保育園は徒歩6分圏内 子育てファミリーに快適な住環境 ルーフバルコニー付き 17.7帖の2階リビング 全居室2面採光で風が通り抜ける住まい

| 学区 |
長津田第二小学校 1500m →この学区の物件一覧を見る 田奈中学校 270m →この学区の物件一覧を見る |
|---|---|
| 用途地域 | 第一種住居地域 , 第一種低層住居専用地域 |
| 地目 | 宅地 |
| 建ぺい率 | 60% / 50% |
| 容積率 | 176% / 100% |
| 駐車場 | 有り カースペース |
| 接道 | 北西4.4m |
| 権利 | 所有権 |
| 私道面積 | 無し |
|---|---|
| セットバック | 無し |
| 建物構造 | 木造 |
| 建物階数 | 2階 |
| 築年月 | 2025/12 |
| 入居日 | 2026/01 |
| 建築確認番号 | 第KBI-SGM25-10-2555号 |
| 都市計画 | 市街化区域 |
| 取引態様 | 仲介 |
| 物件番号 | P1097 |
|---|---|
| 設備 | 都市ガス、公営水道、下水、駐車場1台、緑豊かな住宅地、閑静な住宅地、平坦地、都市近郊、地盤調査済、市街地が近い、周辺交通量少なめ、スーパーが近い(10分以内)、2沿線以上利用可、中学校徒歩10分以内、保育施設・幼稚園5分以内、公園5分以内、システムキッチン、カウンターキッチン、対面キッチン、食器洗浄機、浄水器、ユニットバス、追い焚き、浴室乾燥機、ウォシュレット、オートバス付き、トイレ2ヶ所、浴室1坪以上、浴室に窓、暖房便座、浴室暖房、バルコニー、ルーフバルコニー、2階建、LDK15畳以上、全室2面採光、南西向き、フローリング、リビング階段、クローゼット、収納、クローゼット3ヶ所、下駄箱、全居室収納、シャンプドレッサー付き、年度内入居可、モニタ付きインターフォン、ペアガラス、火災警報器、通風良好、陽当り良好、24時間換気システム、対面キッチン、都市ガス、建物10年保証 |
| 特記事項 | 宅地造成工事規制区域:有/高度地区:有/準防火地域:有/日影制限:有/緑化地域、間取りSは納戸。 / |
| 備考 | 「長津田」駅徒歩7分の好立地! 公園・スーパー・保育園は徒歩6分圏内 子育てファミリーに快適な住環境 ルーフバルコニー付き 17.7帖の2階リビング 全居室2面採光で風が通り抜ける住まい |