新築一戸建
横浜線 鴨居
横浜線 鴨居駅 徒歩 19分 この駅が最寄り駅の物件一覧を見る
横浜線 小机駅 徒歩 27分
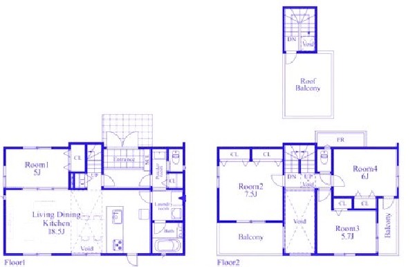
大型ルーフバルコニー+2階バルコニー×2カ所あり! ダイニング上部吹抜けの開放感溢れるLDK 洗面室にガス栓設置 エコジョーズ 南向きのゆったり4LDK 周辺は公園が点在する緑豊かな住環境

| 学区 |
東本郷小学校 →この学区の物件一覧を見る 城郷中学校 →この学区の物件一覧を見る |
|---|---|
| 用途地域 | 第一種低層住居専用地域 |
| 地目 | 宅地 |
| 建ぺい率 | 50% |
| 容積率 | 80% |
| 駐車場 | 有り カースペース |
| 接道 | 北西4m |
| 権利 | 所有権 |
| 私道面積 | 有り 9.01m² |
|---|---|
| セットバック | 無し |
| 建物構造 | 木造 |
| 建物階数 | 2階 |
| 築年月 | 2026/01 |
| 入居日 | 2026/02 |
| 建築確認番号 | 第25KAK建確01853号 |
| 都市計画 | 市街化区域 |
| 取引態様 | 仲介 |
| 物件番号 | P1027 |
|---|---|
| 設備 | 公営水道、下水、吹き抜け、省エネルギー対策、シックハウス対策、駐車場1台、緑豊かな住宅地、閑静な住宅地、都市近郊、地盤調査済、市街地が近い、周辺交通量少なめ、スーパーが近い(10分以内)、公園5分以内、コンビニ5分以内、対面キッチン、システムキッチン、対面キッチン、食器洗浄機、浄水器、オープンキッチン、ユニットバス、追い焚き、浴室乾燥機、ウォシュレット、オートバス付き、トイレ2ヶ所、浴室1坪以上、浴室に窓、暖房便座、浴室暖房、バルコニー、バルコニー2面、ルーフバルコニー、ワイドバルコニー、2階建、LDK18畳以上、省エネ給湯器、採光2面、南面3室、南向き、全室2面採光、フローリング、天井高2.5m以上、リビング階段、クローゼット、収納、下駄箱、全居室収納、シャンプドレッサー付き、南庭、フラット35Sに対応、年度内入居可、モニタ付きインターフォン、ペアガラス、火災警報器、通風良好、陽当り良好、眺望良好、24時間換気システム、建物10年保証 |
| 特記事項 | 不整形地:有/宅地造成工事規制区域:有/高度地区:有/日影制限:有/敷地内段差:有/敷地面積最低限度:有/高さ限度:有/緑化地域、建築基準法第22条による区域、建築基準法第22条による区域、東本郷地区プラン、横浜市建築基準条例第3条による制限有。 / |
| 備考 | 大型ルーフバルコニー+2階バルコニー×2カ所あり! ダイニング上部吹抜けの開放感溢れるLDK 洗面室にガス栓設置 エコジョーズ 南向きのゆったり4LDK 周辺は公園が点在する緑豊かな住環境 |