新築一戸建
小田急線 鶴川
小田急線 鶴川駅 徒歩 25分 この駅が最寄り駅の物件一覧を見る
京王相模原線 京王永山駅 バス停「 大蔵」まで バス利用 27分 徒歩 7分
閑静な住宅街 静かな日常を送ることの出来る住環境 全14棟の大型開発現場 床暖房や食洗機など設備充実

| 学区 |
町田市立大蔵小学校 町田市立鶴川中学校 |
|---|---|
| 用途地域 | 第一種低層住居専用地域 |
| 地目 | 宅地 |
| 建ぺい率 | 40% |
| 容積率 | 80% |
| 駐車場 | 有り カースペース |
| 接道 | 北東4.5m |
| 権利 | 所有権 |
| 私道面積 | 無し |
|---|---|
| セットバック | 無し |
| 建物構造 | 木造 |
| 建物階数 | 2階 |
| 築年月 | 2026/04 |
| 入居日 | 即時 |
| 建築確認番号 | |
| 都市計画 | 市街化区域 |
| 取引態様 | 仲介 |
| 物件番号 | A2399-10 |
|---|---|
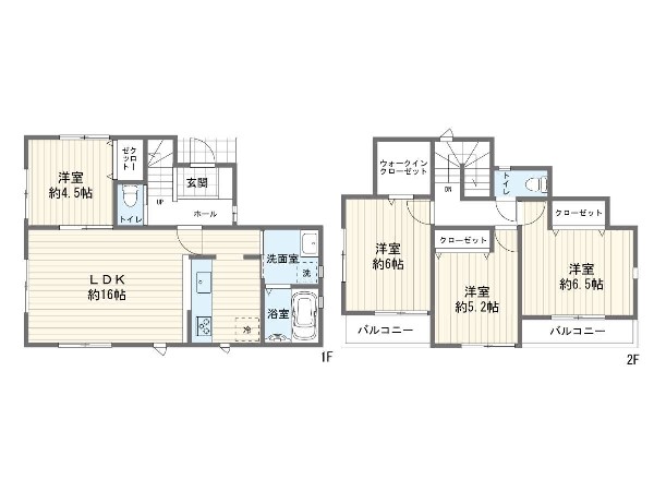
| 設備 | 都市ガス、公営水道、下水、駐車場1台、閑静な住宅地、都市近郊、開発分譲地内、地盤調査済、市街地が近い、スーパーが近い(10分以内)、小学校徒歩10分以内、ウォークインクローゼット、対面キッチン、都市ガス、システムキッチン、ガス3口、対面キッチン、食器洗浄機、浄水器、ユニットバス、追い焚き、浴室乾燥機、ウォシュレット、オートバス付き、トイレ2ヶ所、浴室1坪以上、浴室に窓、暖房便座、浴室暖房、バルコニー、南面バルコニー、2階建、LDK15畳以上、採光2面、南向き、クローゼット、収納、床下収納、下駄箱、全居室収納、シャンプドレッサー付き、モニタ付きインターフォン、ペアガラス、火災警報器、陽当り良好、24時間換気システム、建物10年保証 |
| 特記事項 | 景観法:有/宅地造成工事規制区域:有/高度地区:有/日影制限:有/敷地面積最低限度:有/高さ限度:有/敷地面積の他に約42m2あり、土砂災害警戒区域内、建築基準法第22条区域。 / |
| 備考 | 閑静な住宅街 静かな日常を送ることの出来る住環境 全14棟の大型開発現場 床暖房や食洗機など設備充実 |