中古一戸建
グリーンライン 高田
グリーンライン 高田駅 徒歩 14分 この駅が最寄り駅の物件一覧を見る
東急東横線 綱島駅 徒歩 18分
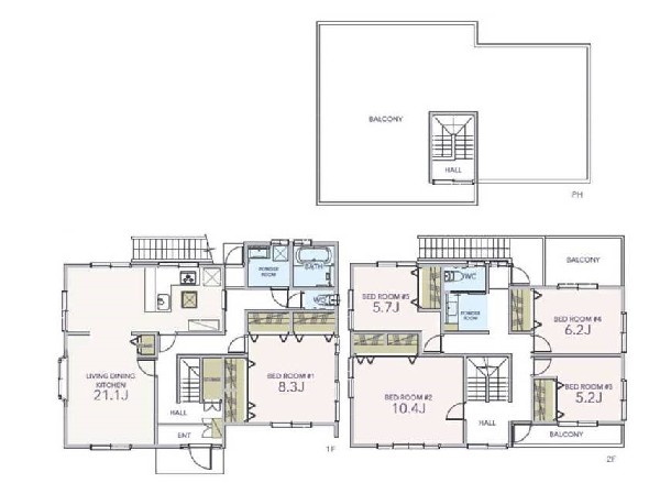
「綱島」駅「高田」駅徒歩圏内 LDK21帖の大型5LDK 駐車2台 開放感あるルーフバルコニー

| 学区 |
新吉田小学校 →この学区の物件一覧を見る 新田中学校 →この学区の物件一覧を見る |
|---|---|
| 用途地域 | 第一種低層住居専用地域 |
| 地目 | 宅地 |
| 建ぺい率 | 60% |
| 容積率 | 100% |
| 駐車場 | 有り カースペース |
| 接道 | 南4m、西4m |
| 権利 | 所有権 |
| 私道面積 | 無し |
|---|---|
| セットバック | 無し |
| 建物構造 | 鉄筋コンクリート造 |
| 建物階数 | 2階 |
| 築年月 | 1988/06 |
| 入居日 | 相談 |
| 建築確認番号 | |
| 都市計画 | 市街化区域 |
| 取引態様 | 仲介 |
| 物件番号 | A2344 |
|---|---|
| 設備 | 都市ガス、公営水道、下水、駐車場2台以上、緑豊かな住宅地、閑静な住宅地、角地、都市近郊、土地50坪以上、南側道路面す、市街地が近い、周辺交通量少なめ、スーパーが近い(10分以内)、2沿線以上利用可、中学校徒歩10分以内、保育施設・幼稚園5分以内、公園5分以内、コンビニ5分以内、対面キッチン、都市ガス、ガスコンロ、ガス3口、カウンターキッチン、対面キッチン、L型キッチン、食器洗浄機、トイレ2ヶ所、浴室に窓、セカンド洗面台、バルコニー、バルコニー2面、ルーフバルコニー、南面バルコニー、リノベーション、2階建、LDK20畳以上、出窓、採光3面、南向き、全室2面採光、フローリング、収納、下駄箱、全居室収納、シャンプドレッサー付き、庭、年内入居可、通風良好、陽当り良好 |
| 特記事項 | 文化財保護法:有/宅地造成工事規制区域:有/高度地区:有/準防火地域:有/日影制限:有/敷地面積最低限度:有/高さ限度:有/緑化地域、駐車は車種により2台可。 /リノベーション…2026年05月(リノベーション中キッチン交換、浴室交換、新規トイレ、新規洗面化粧台、給湯器交換、玄関ドア交換、フローリング上張り等) 外装リフォーム…2026年05月(外壁、屋根、バルコニー防水等) |
| 備考 | 「綱島」駅「高田」駅徒歩圏内 LDK21帖の大型5LDK 駐車2台 開放感あるルーフバルコニー |