新築一戸建
東急東横線 妙蓮寺
東急東横線 妙蓮寺駅 徒歩 10分 この駅が最寄り駅の物件一覧を見る
横浜線 大口駅 バス停「 白幡向井町」まで バス利用 10分 徒歩 11分
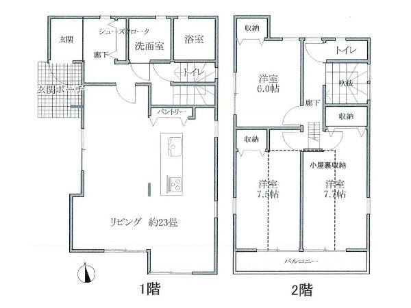
住みやすさで人気の「妙蓮寺」駅徒歩10分 緑豊かな立地です LDK約23帖 お洒落で開放的なアイランドキッチン

| 学区 |
白幡小学校 →この学区の物件一覧を見る 神奈川中学校 →この学区の物件一覧を見る |
|---|---|
| 用途地域 | 第一種低層住居専用地域 |
| 地目 | 宅地 |
| 建ぺい率 | 50% |
| 容積率 | 100% |
| 駐車場 | 有り シャッタ付車庫 |
| 接道 | 南4m |
| 権利 | 所有権 |
| 私道面積 | 有り 24m² 1/8 |
|---|---|
| セットバック | 無し |
| 建物構造 | 木造 |
| 建物階数 | 2階 |
| 築年月 | 2025/10 |
| 入居日 | 即時 |
| 建築確認番号 | 第25KAK建確03535号 |
| 都市計画 | 市街化区域 |
| 取引態様 | 仲介 |
| 物件番号 | A2135 |
|---|---|
| 設備 | 都市ガス、公営水道、下水、宅配ロッカー、吹き抜け、省エネルギー対策、駐車場1台、緑豊かな住宅地、都市近郊、地盤調査済、南側道路面す、市街地が近い、周辺交通量少なめ、スーパーが近い(10分以内)、2沿線以上利用可、小学校徒歩10分以内、保育施設・幼稚園5分以内、公園5分以内、シューズインクローク、対面キッチン、パントリー、都市ガス、システムキッチン、ガス3口、対面キッチン、浄水器、I型キッチン、アイランドキッチン、パントリー(食器・食品の収納庫)、ユニットバス、追い焚き、浴室乾燥機、ウォシュレット、トイレ2ヶ所、浴室1坪以上、浴室に窓、暖房便座、浴室暖房、バルコニー、南面バルコニー、2階建、全居室6畳以上、LDK20畳以上、省エネ給湯器、採光3面、南向き、クローゼット、収納、下駄箱、全居室収納、シューズインクローク、シャンプドレッサー付き、年内入居可、モニタ付きインターフォン、ペアガラス、火災警報器、通風良好、陽当り良好、眺望良好、24時間換気システム、建物10年保証 |
| 特記事項 | 崖上につき建築制限:有/宅地造成工事規制区域:有/高度地区:有/準防火地域:有/日影制限:有/接道と段差:有/敷地面積最低限度:有/高さ限度:有/再建築時に擁壁の築造工事が必要です 緑化地域。 / |
| 備考 | 住みやすさで人気の「妙蓮寺」駅徒歩10分 緑豊かな立地です LDK約23帖 お洒落で開放的なアイランドキッチン |