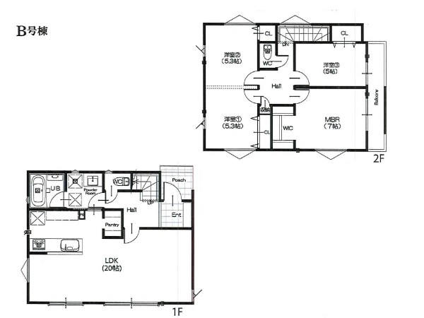
新築一戸建
ブルーライン 新羽
ブルーライン 新羽駅 徒歩 15分 この駅が最寄り駅の物件一覧を見る
横浜線 新横浜駅 バス停「 太尾西住宅」まで バス利用 10分 徒歩 10分
「心地よさ」と「デザイン」がちょうどいい 静けさと利便性が共有する街「大倉山」で始まる、上質な日常

| 学区 |
太尾小学校 →この学区の物件一覧を見る 大綱中学校 →この学区の物件一覧を見る |
|---|---|
| 用途地域 | 第一種住居地域 |
| 地目 | 宅地 |
| 建ぺい率 | 60% |
| 容積率 | 200% |
| 駐車場 | 有り カースペース |
| 接道 | 北4.5m |
| 権利 | 所有権 |
| 私道面積 | 有り 112.31m² 1/6 |
|---|---|
| セットバック | 無し |
| 建物構造 | 木造 |
| 建物階数 | 2階 |
| 築年月 | 2026/03 |
| 入居日 | 2026/04 |
| 建築確認番号 | 第KBI-SGM25-10-2833号 |
| 都市計画 | 市街化区域 |
| 取引態様 | 仲介 |
| 物件番号 | A2110-B |
|---|---|
| 設備 | 都市ガス、公営水道、下水、駐車場1台、整形地、緑豊かな住宅地、都市近郊、地盤調査済、市街地が近い、2沿線以上利用可、公園5分以内、コンビニ5分以内、ウォークインクローゼット、対面キッチン、パントリー、都市ガス、整形地、眺望良好、システムキッチン、ガス3口、対面キッチン、食器洗浄機、浄水器、I型キッチン、パントリー(食器・食品の収納庫)、ユニットバス、追い焚き、浴室乾燥機、ウォシュレット、トイレ2ヶ所、浴室1坪以上、暖房便座、バルコニー、2階建、全居室6畳以上、LDK20畳以上、省エネ給湯器、採光2面、南西向き、クローゼット、ウォークインクローゼット、収納、下駄箱、全居室収納、シャンプドレッサー付き、年内入居可、モニタ付きインターフォン、ペアガラス、火災警報器、陽当り良好、24時間換気システム、建物10年保証、スイングダウンウォール |
| 特記事項 | 宅地造成工事規制区域:有/高度地区:有/準防火地域:有/日影制限:有/高さ限度:有。 / |
| 備考 | 「心地よさ」と「デザイン」がちょうどいい 静けさと利便性が共有する街「大倉山」で始まる、上質な日常 |