新築一戸建
東急東横線 綱島
東急東横線 綱島駅 バス停「 新田農協前」まで バス利用 7分 徒歩 2分 この駅が最寄り駅の物件一覧を見る
ブルーライン 新羽駅 徒歩 17分
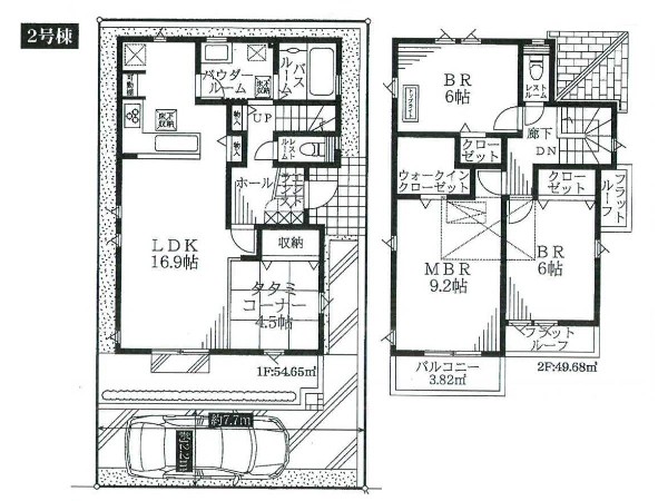
「綱島」「新綱島」駅利用可(バス停至近)タタミコーナーと合わせて21.4帖の広々LDK 東急セキュリティ標準装備

| 学区 |
新田小学校 →この学区の物件一覧を見る 新田中学校 →この学区の物件一覧を見る |
|---|---|
| 用途地域 | 第一種住居地域 |
| 地目 | 宅地 |
| 建ぺい率 | 60% |
| 容積率 | 200% |
| 駐車場 | 有り カースペース |
| 接道 | 南4.5m |
| 権利 | 所有権 |
| 私道面積 | 無し |
|---|---|
| セットバック | 無し |
| 建物構造 | 木造 |
| 建物階数 | 2階 |
| 築年月 | 2026/03 |
| 入居日 | 2026/04 |
| 建築確認番号 | 第KS125-3820-50342号 |
| 都市計画 | 市街化区域 |
| 取引態様 | 仲介 |
| 物件番号 | A2144-2 |
|---|---|
| 設備 | 都市ガス、公営水道、下水、セキュリティシステム、省エネルギー対策、駐車場1台、整形地、緑豊かな住宅地、都市近郊、地盤調査済、南側道路面す、前道6m以上、市街地が近い、田園風景、スーパーが近い(10分以内)、駅まで平坦、2沿線以上利用可、保育施設・幼稚園5分以内、コンビニ5分以内、ウォークインクローゼット、対面キッチン、パントリー、都市ガス、システムキッチン、ガス3口、対面キッチン、L型キッチン、浄水器、パントリー(食器・食品の収納庫)、ユニットバス、追い焚き、浴室乾燥機、ウォシュレット、トイレ2ヶ所、浴室1坪以上、浴室に窓、暖房便座、バルコニー、テラス、南面バルコニー、2階建、全居室6畳以上、LDK20畳以上、屋根裏収納、省エネ給湯器、南向き、全室2面採光、フローリング、クローゼット、ウォークインクローゼット、収納、床下収納、下駄箱、全居室収納、洗面室収納、シャンプドレッサー付き、庭、年内入居可、モニタ付きインターフォン、ペアガラス、火災警報器、セキュリティ充実、通風良好、陽当り良好、24時間換気システム、建物10年保証 |
| 特記事項 | 宅地造成工事規制区域:有/高度地区:有/準防火地域:有/日影制限:有/高さ限度:有/緑化地域 ゴミ協定書・ゴミ置場に関する覚書有 LDKはタタミコーナーと合わせて21.4帖。 / |
| 備考 | 「綱島」「新綱島」駅利用可(バス停至近)タタミコーナーと合わせて21.4帖の広々LDK 東急セキュリティ標準装備 |